Eladó lakás Székesfehérvár 54 900 000 Ft

Leírás

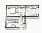
Székesfehérvár egyik legkeresettebb részén, a belváros szívében kínálunk megvételre egy 56 m²-es, 2 különnyíló szobás, jó állapotú lakást, egy szigetelt, rendezett, 4 emeletes társasház 4. emeletén.
A lakás alacsony rezsijének és praktikus elrendezésének köszönhetően tökéletes választás saját célra és befektetésnek is.

Paraméterek:
- 56 m² hasznos alapterület
- 2 különnyíló, világos szoba
- Praktikus elosztás: külön konyha-étkező, kamra, beépített szekrény
- Jó, költözhető állapot
- Új konyhabútor elektromos sütővel
- 2 rétegű műanyag nyílászárók redőnnyel
- Újszerű Ariston villanybojler a meleg vízhez
- Távfűtés – kiszámítható, alacsony rezsi
- 1x25 A elektromos kapacitás

Épület:
- 4 emeletes, jól karbantartott csúsztatott zsalus társasház
- Panelprogramon átesett
- Közös költség: mindössze 13.000 Ft/hó
- Csendes, kulturált lakóközösség

Lokáció:
- Belvárosi elhelyezkedés
- Kiváló infrastruktúra: iskola, óvoda, orvos, gyógyszertár, posta pár perc sétára
- Tömegközlekedés kiváló (több buszjárat közvetlen közelben)
- Autóval is könnyen megközelíthető

Befektetők figyelem!

Az ingatlan jelenleg bérlővel hasznosított, akik szívesen maradnának, így akár azonnali hozamtermelő befektetésként is megvásárolható.

Ne maradjon le erről a kivételes belvárosi lehetőségről – ideális otthon vagy stabil befektetés egyben!
Hívjon bizalommal és tekintse meg személyesen!




#székesfehérvár #eladólakás #ingatlanbefektetés #belváros #lakáseladó

Lakás részletei

Ár: 54 900 000 Ft
Méret: 56 négyzetméter
Azonosító: 11612128
Irodai azonosító: H516290-5196284
Emelet: 4. emelet
Építőanyag: Csúsztatott zsalu
Fűtés jellege: Távfűtés
Ingatlan állapota:
Komfort fokozat: Összkomfort
Építési év: 50 évesnél régebbi
Kilátás: utcai
Egész szobák: 3

Térkép

Hasonló lakás hirdetések

Eladó lakás

Székesfehérvár

Székesfehérvár egyik legcsendesebb lakótelepén, a Seregélyesi úton található ...

Eladó lakás

Székesfehérvár, Belváros

Székesfehérváron a Belvárosban, tízemeletes, akadálymentesített panelépületben, ...

Eladó lakás

Székesfehérvár

Ez a lakás még újkorában sem nézett így ki! Ha egy szépen felújított ...

Eladó lakás

Székesfehérvár, Belváros

Székesfehérvár egyik legkeresettebb részén, a belváros szívében kínálunk ...

Hasonló lakás hirdetések

Eladó lakás

Székesfehérvár

Székesfehérvár egyik legcsendesebb lakótelepén, a Seregélyesi úton található ...

Eladó lakás

Székesfehérvár, Belváros

Székesfehérváron a Belvárosban, tízemeletes, akadálymentesített panelépületben, ...

Eladó lakás

Székesfehérvár

Ez a lakás még újkorában sem nézett így ki! Ha egy szépen felújított ...

Eladó lakás

Székesfehérvár, Belváros

Székesfehérvár egyik legkeresettebb részén, a belváros szívében kínálunk ...