Eladó lakás Szigethalom 76 200 000 Ft

Leírás

Szigethalom központi részén négy egységből álló "ikerház jellegű" " D" jelű emeleti hőszivattyús lakás eladó!

KIVÁLÓ KIVITELEZŐ, VERSENYKÉPES ÁRON, KIVÁLÓ IRODÁT REMEK HELYEN AJÁNL ÖNNEK! H-TARIFA, HŐSZIVATTYÚ!

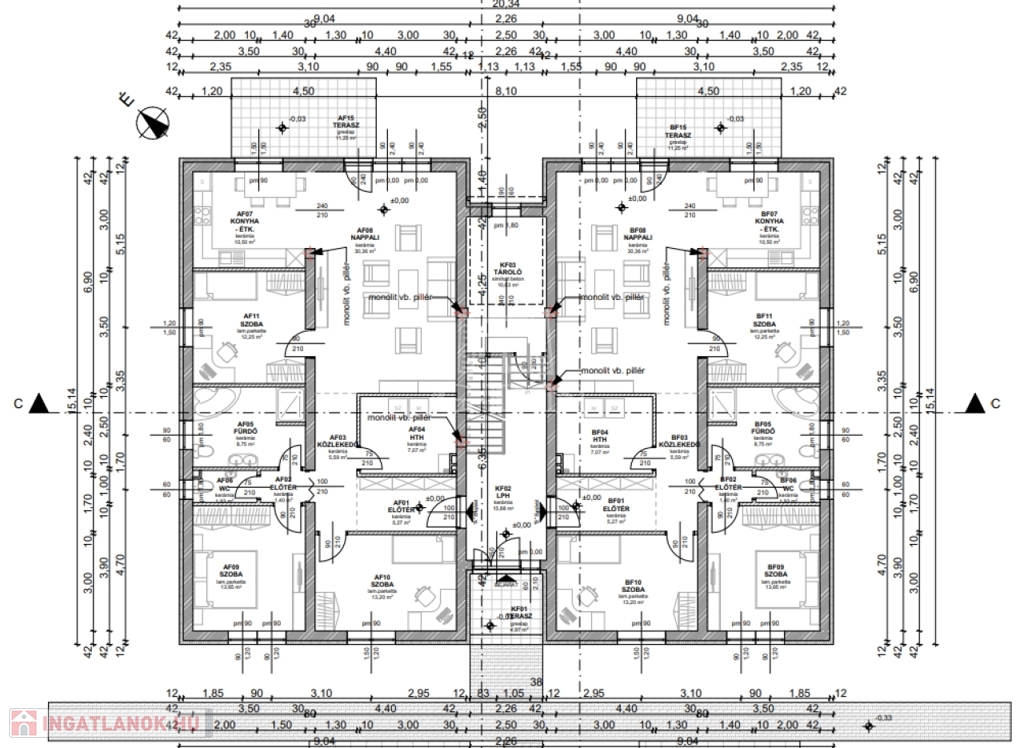
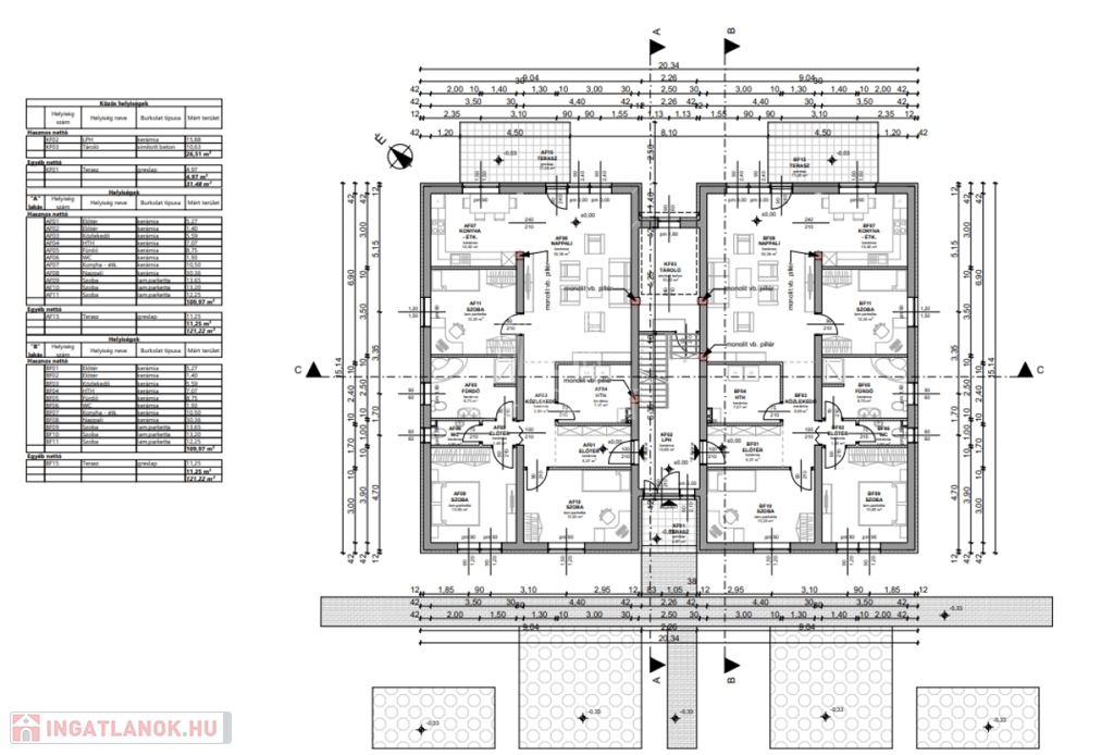
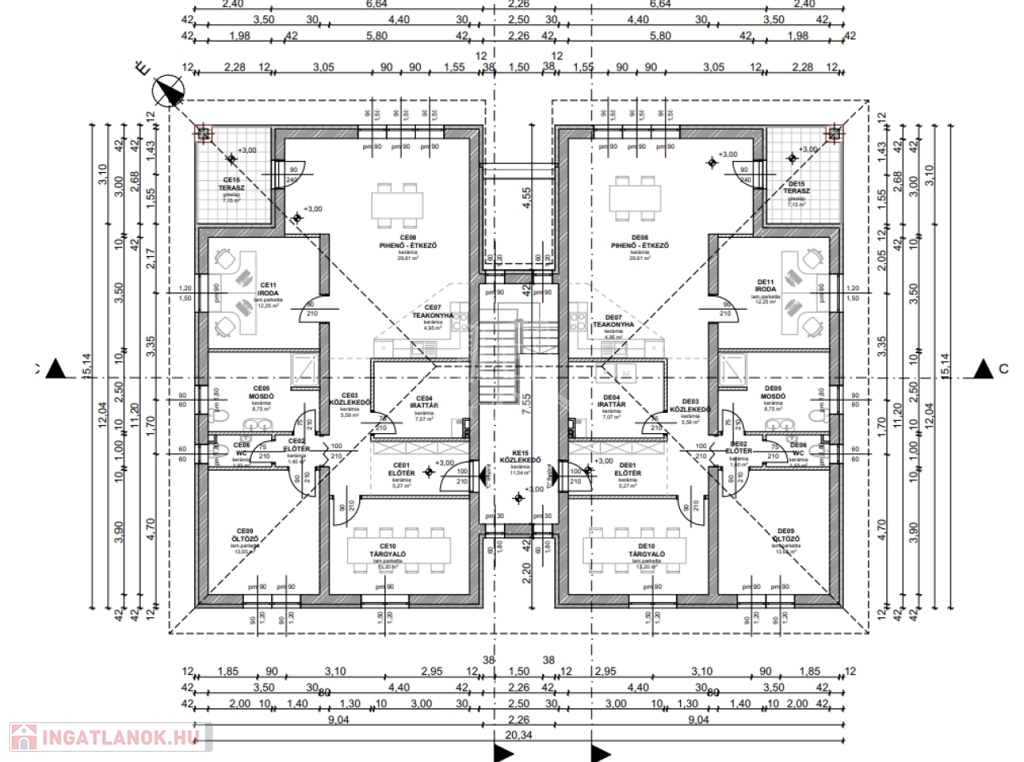
A lakás helyiségei: előtér 2,27 m2, előtér 1,40 m2, közlekedő 5,59 m2, irattár 7,07 m2, mosdó 8,75 m2, wc 1,93 m2, teakonyha 4,95 m2, pihenő/étkező 29,61 m2, öltöző 13,65 m2 tárgyaló 13,20 m2, iroda 12,25 m2, terasz 7,19 m2.

A lakást zárt lépcsőházból érjük el, a földszinten két lakás, az emeleten két iroda kerül kialakításra.

Az épület beton alapra, 30-as síkra csiszolt tégla falazattal, monolit beton födémmel, beton cserép fedéssel épül meg.
Az épület külső nyílászárói (ablakok) műanyag szerkezetűek 6 légkamrás 3 rétegű hőszigetelt üvegezéssel, elektromos redőnnyel, szerelve. A bejárati biztonsági ajtó több ponton záródó.
A homlokzaton 12 cm GRAFITOS Dryvit rendszerű, a zárószinten födémben 20 cm kőzetgyapot, míg a padlóban 12 cm lépésálló nikecell szigetelés kerül beépítésre.
Fűtése/ hűtése, meleg vízellátása hőszivattyúval (levegő) történik padlófűtéssel. A H tarifa kedvező üzemeltetési költséget biztosít.
Burkolatok választhatóak 10,000 ft/nm felette a vevő kompenzál. Szaniterek keretösszegig választhatók.
A kert alap kertrendezéssel kerül átadásra, viacolorozott autóbeállóval és személybejáróval.

Műszaki tartalom ízelítő:
-vasalt beton sávalap,
-30 nf síkra csiszolt tégla falazat
-tégla válaszfalak
-monolit beton födém
-nyílászárók 6 légkamrásak elektromos redőnnyel szereltek, szúnyoghálóval ellátottak,
-tető beton cseréppel fedett
-fűtés hőszivattyúval, padlófűtéses hőleadással
-burkolatok 10.000ft/nm választhatóak
-4 klíma lakásonként
-H tarifa
-lakásokhoz saját kert tartozik
-minden közmű benn kivétel gáz,
-homlokzaton 12 cm dryvit rendszerű szigetelés
-padlón 12 cm lépésálló szigetelés

A burkolatok, szaniterek választhatóak, a kivitelező igyekszik minden vásárlói igényt kielégíteni.

A jelű földszinti lakás 300 m2 kert,109,97 m2 lakótér ára: 81.990.000 ft
B jelű földszinti lakás 300 m2 kert,109,97 m2 lakótér ára: 81.990.000 ft
C jelű emeleti iroda 7,12 m2 terasszal 103,67 m2 hasznos térrel: 76.200.000 ft
D jelű emeleti iroda 7,12 m2 terasszal 103,67 m2 hasznos térrel: 76.200.000 ft

Az emeleten két iroda van, akár lakásnak is lehet használni. Tulajdoni lap szerint iroda besorolású.

Várható átadás 2026. május.

Várom megtisztelő hívását a hét bármelyik napján!

FINANSZÍROZÁS:
Nálunk mindent egy helyen intézhet:
- hivatalos ingatlanközvetítés;
- szakszerű jogi képviselet;
- profi CSOK-PLUSZ, és hitelügyintézés: 16 Bank, több mint 100 konstrukció;

A részletes adatvédelmi tájékoztató folyamatosan elérhető a gdn ingatlan adatvédelmi oldalon.

Lakás részletei

Ár: 76 200 000 Ft
Méret: 104 négyzetméter
Azonosító: 11577438
Irodai azonosító: 389256
Cím: Pest megye
Emelet: 1. emelet
Építőanyag: Tégla
Fűtés jellege: Hőszivattyú
Ingatlan állapota: Kitűnő
Komfort fokozat: Összkomfort
Építési év: Új építésű
Tulajdonviszony: Saját
Kilátás: kertre néző
Egész szobák: 4

Egyéb jellemzők

  • Erkély
  • Garázs
  • Lift
  • Pince
  • Tároló

Térkép

Hasonló lakás hirdetések

Eladó lakás

Szigethalom

Szigethalom központi részén négy egységből álló "ikerház jellegű" ...

Eladó lakás

Szigethalom

Szigethalom központi részén négy egységből álló "ikerház jellegű" ...

Hasonló lakás hirdetések

Eladó lakás

Szigethalom

Szigethalom központi részén négy egységből álló "ikerház jellegű" ...

Eladó lakás

Szigethalom

Szigethalom központi részén négy egységből álló "ikerház jellegű" ...