Eladó lakás Szolnok 44 000 000 Ft

Leírás

Szolnoki CasaNetWork ingatlaniroda megvételre kínál egy 23 lakásos új építésű társasházi lakást!

Az ingatlan főbb jellemzői:

45 cm-es tégla falazat, 15 cm-es nikecel szigeteléssel

- beton födém C25/30 minőségben, hangszigeteléssel

- Schök hőhídmegszakításos teraszcsatlakozás

- a nyíllászárók hő és hangszigeteltek ( LOW-e ) , műanyagból készítettek

- a főbejáratnál kóddal ellátott beléptető rendszer felel a biztonságért

- a fűtést központi BOSCH kondenzációs kazánok biztosítják egyedi mérővel, a kellemes hőérzetet a padlófűtés garantálja

- a meleg vízről 1000 literes tároló ( vízlágyító rendszerrel ) gondoskodik

- a hűtést egy 3,5 KW-os split klíma látja el

- a lakáshoz egy 8 m2-es terasz tartozik

a kivitelező 1,5 m2-es ajándék tárolóval kedveskedik a leendő lakók részére

- 2026 május 31-ig a szerződő ügyfelek térítésmentesen kapják az udvari beállót

- a lakáshoz különálló garázs is vásárolható korlátozott darabszámban

- az udvarban kamera rendszer , illetve LED-es mozgásérzékelős világítás kerül kialakításra

 Amennyiben a fenti  155806730  -as azonosító számú eladó társasházi lakás, vagy bármely kínálatunkban található ingatlan felkeltette érdeklődését, kérem hívjon bizalommal!

/A hirdetésben szereplő információk a megbízótól kapott adatok alapján készültek./

Irodánk teljes körű szolgáltatással áll ügyfelei rendelkezésére: hitelügyintézés, ügyvédi szolgáltatás, ingatlan értékbecslés, energetikai tanúsítvány készítése.

CasaNetWork - Ingatlanban otthon vagyunk!

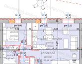
Lakás részletei

Ár: 44 000 000 Ft
Méret: 44 négyzetméter
Azonosító: 11615618
Irodai azonosító: 155806730
Emelet: Földszint
Építőanyag: Tégla
Fűtés jellege: Házközponti (egyedi mérővel)
Ingatlan állapota: Kitűnő
Egész szobák: 2

Hasonló lakás hirdetések

Eladó lakás

Szolnok

A CasaNetWork Ingatlanhálózat ceglédi irodája eladásra kínálja  174602182 ...

Eladó lakás

Szolnok

A Szolnoki CasaNetWork Ingatlaniroda megvételre kínál egy 2 szobás lakást ...

Eladó lakás

Szolnok

A Szolnoki  CasaNetWork ingatlaniroda megvételre kínál a Baross úton ...

Eladó lakás

Szolnok

A szolnoki CasaNetWork Ingatlaniroda megvételre kínál a belvárosban a ...

Hasonló lakás hirdetések

Eladó lakás

Szolnok

A CasaNetWork Ingatlanhálózat ceglédi irodája eladásra kínálja  174602182 ...

Eladó lakás

Szolnok

A Szolnoki CasaNetWork Ingatlaniroda megvételre kínál egy 2 szobás lakást ...

Eladó lakás

Szolnok

A Szolnoki  CasaNetWork ingatlaniroda megvételre kínál a Baross úton ...

Eladó lakás

Szolnok

A szolnoki CasaNetWork Ingatlaniroda megvételre kínál a belvárosban a ...