Eladó lakás Szombathely 52 800 000 Ft

Leírás

Szombathelyen, jó infrastruktúrával rendelkező Joskar Ola városrészen, modern, 58 lakásos tégla építésű társasházban, magas műszaki tartalommal épülő lakásokat kínálunlk eladásra. Az ingatlanok 36-66 m2 nagyságúak, nappali+1, illetve nappali+2 szobásak, erkélyekkel, teraszokkal. Központi távhős fűtés tervezett, a lakásokban padlófűtéssel egyedi hőmennyiség szabályozással és mérővel.
A használati melegvizet is a távhő központból biztosítják, a fogyasztás
lakásonként egyedi mérővel történik.
Az ingatlanban 1 db 2,5 kw-os hőszivattyús Green vagy azzal egyenértékű típusú klíma kerül felszerelésre. Nyílászárói fokozottan hang-és hőszigeteltek, redőny fogadására alkalmas szemöldökkel. Az épület homlokzatára 15 cm vastag EPS rendszerű szigetelés kerül. A lakásokhoz felszíni parkoló, tároló és garázs is vásárolható. Parkoló 1.8 millió forint, tároló nagyságtól függően 2.2-4.5 millió forint, garázs 10.9 millió forint. Várható átadás 2026 ősze. Ha teljeskörű tájékoztatást szeretne, kérem keressen . Az irodánkban személyes találkozóra van lehetőség. Ha hitere van szüksége, abban is segítünk.
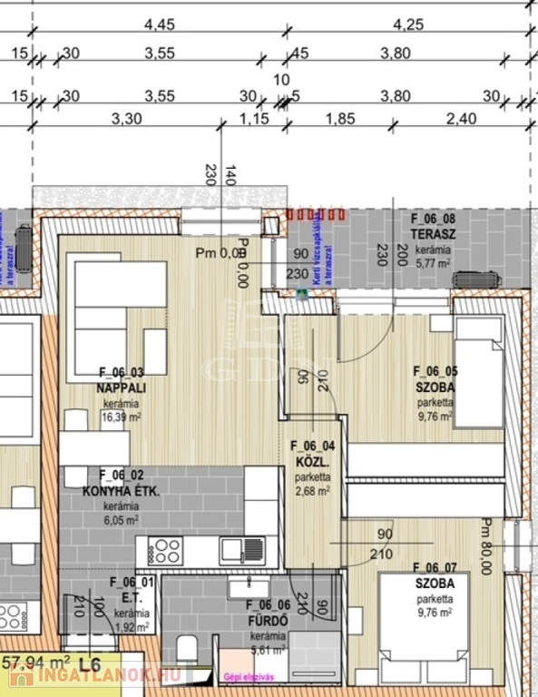
A hirdetésben szereplő lakás : Fsz.6. 52.800.000 Ft. Az ÁFA visszaigényelhető.
Az ingatlan alapterülete 52.17 m2, 6 m2 erkéllyel.

Lakás részletei

Ár: 52 800 000 Ft
Méret: 52 négyzetméter
Azonosító: 11574926
Irodai azonosító: 388916
Cím: Karnyújtásnyira a belvárostól
Emelet: Földszint
Építőanyag: Tégla
Fűtés jellege: Házközponti (egyedi mérővel)
Ingatlan állapota: Kitűnő
Komfort fokozat: Összkomfort
Építési év: Új építésű
Tulajdonviszony: Saját
Kilátás: utcai
Egész szobák: 3

Egyéb jellemzők

  • Erkély
  • Garázs
  • Lift
  • Pince
  • Tároló

Térkép

Hasonló lakás hirdetések

Eladó lakás

Szombathely

Szombathelyen, az Oladi lakótelepen, 69 négyzetméteres, használt lakás ...

Eladó lakás

Szombathely

Szombathely északi részén a Farkas Károly utcában csendes, nyugodt, kiváló ...

Eladó lakás

Szombathely

Eladó Szombathely szívében, a közkedvelt Vörösmarty Mihály utcában ...

Eladó lakás

Szombathely

Modern megjelenésű, értékálló, kényelmes és élhető lakóparkban valamint ...

Hasonló lakás hirdetések

Eladó lakás

Szombathely

Szombathelyen, az Oladi lakótelepen, 69 négyzetméteres, használt lakás ...

Eladó lakás

Szombathely

Szombathely északi részén a Farkas Károly utcában csendes, nyugodt, kiváló ...

Eladó lakás

Szombathely

Eladó Szombathely szívében, a közkedvelt Vörösmarty Mihály utcában ...

Eladó lakás

Szombathely

Modern megjelenésű, értékálló, kényelmes és élhető lakóparkban valamint ...