Eladó lakás Szombathely 64 900 000 Ft

Leírás

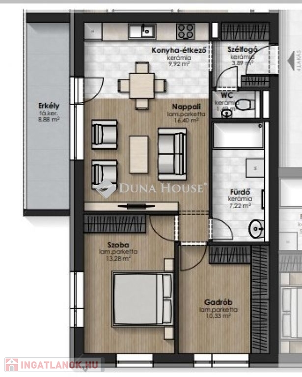
ÚJ ÉPÍTÉSŰ LAKÁSOK OLADON, ZÖLD KÖRNYEZETBEN! Szombathelyen, a közkedvelt oladi városrészen kerül kivitelezésre a Phoenix Garden lakópark 39 lakásos társasháza.A hirdetésben szereplő lakás MÁSODIK emeleti, nappali + 2 szobás, alapterülete 62,44 nm + 8,88 nm terasz tartozik hozzá.A Projekt kivitelezése 2025 Tavaszán kezdődik, a leendő tulajdonosok 2026 II.negyedévében vehetik át minőségi, modern épületben található lakásaikat.Az érdeklődők egészen a nappali +1 szobás lakásoktól a nappalin+3 szobás lakásokig megtalálhatják a számukra megfelelőt, a lakások kényelmes teraszokkal rendelkeznek.A remek elrendezésű, 40 nm-es nappali +1 szobás alapterületű lakások befektetésnek, illetve első lakáshoz jutó fiataloknak kiváló választás lehet. A 60 nm–es, nappali + 2 szobás, illetve 75 nm feletti, nappali + 3 szobás lakások kialakításánál figyelmet fordítottunk a nagycsaládosokra is.A lakások részére Távhővel biztosított központi fűtővíz, hidegvíz és melegvíz szolgáltatás kerül biztosításra. A lakások hűtését egyedi split klíma biztosítja 1 db kül- és beltéri egységgel. A beltéri egység a nappaliban szerelve része a lakás vételárának .A lakásokban padlófűtés biztosítja a szükséges hőmérsékletet, egyedi szabályozással, termosztát vezérléssel (felhasznált hőmennyiség alapú elszámolással).Gondolva az örökös parkolási problémák megoldására az udvarban kellő számú parkolók és az épület alatt pedig garázsok is helyet kaptak, az udvarban található parkolók megközelítése kiépített útvonalon történik illetve a kényelmes bejutást távirányítású sorompó biztosítja.Lehetőség van akár több parkoló vásárlására is azon ügyfeleink részére, kinek a családban több autó is a tulajdonában van.A 20 nm-es garázsok elektromos kapuval és saját mérőórával felszereltek.Garázs ára: 10 990 000,- FtAutóbeálló ára: 1 490 000,- FtA tárolási problémákra is gondoltunk az épületben, szintenként kellő számú tárolót is építünk melynek vásárlásával a tárolási problémák is megoldottak lehetnek.Tároló árak:1 290 000,- Ft/ 2,29 nm1 490 000,- Ft/ 2,82 nmA tervezők által megálmodott modern formai világba öntött egységes képet mutató, ugyanakkor a zárt udvari társasház együttes a korszerű városi életforma minden előnyét vissza kívánja adni az ott élőknek.A Phoenix Garden Lakópark otthonainak megálmodásakor olyan összetett megoldásban gondolkodtunk, amelyben az épület és a zöldterület együttese harmonikus környezetet alkot, a fiatalok és az idősek igényeit egyaránt szem előtt tartva.A modern, lapos tetős épület környezetbe illesztését rendezett kert teszi teljessé. A kert a társasház közös használatába kerül.Akár egyedülállók, vagy épp gyermekes családok is könnyen választhatnak egy megfelelő otthont. CSOK PLUSZ (Családok Otthonteremtési Kedvezménye) is igénybe vehető!Befektetésnek is tökéletes választás! Akár otthont tervez, akár befektetést, biztos döntést hozhat!A lakások iránt intenzív az érdeklődés, ha érdekli Önt hívja irodánkat mielőbb.További információkért és megtekintésért kérem hívjon vagy írjon e-mailt!

Lakás részletei

Ár: 64 900 000 Ft
Méret: 66 négyzetméter
Azonosító: 11574207
Irodai azonosító: PR078844/LK/23381-5067913
Összesített energetikai besorolás: A
Emelet: 2. emelet
Építőanyag: Tégla
Fűtés jellege: Központi (egyedi mérővel)
Ingatlan állapota: Épülő
Komfort fokozat: Összkomfort
Építési év: Új építésű
Kilátás: kertre néző
Egész szobák: 3

Egyéb jellemzők

  • Erkély
  • Klíma
  • Lift
  • Kocsibeálló

Térkép

Hasonló lakás hirdetések

Eladó lakás

Szombathely

Modern megjelenésű, értékálló, kényelmes és élhető lakóparkban valamint ...

Eladó lakás

Szombathely

Szombathely zöldövezeti, dinamikusan fejlődő városrészén, energiahatékony, ...

Eladó lakás

Szombathely

Szombathely zöldövezeti, dinamikusan fejlődő városrészén, energiahatékony, ...

Eladó lakás

Szombathely

Szombathely zöldövezeti, dinamikusan fejlődő városrészén, energiahatékony, ...

Hasonló lakás hirdetések

Eladó lakás

Szombathely

Modern megjelenésű, értékálló, kényelmes és élhető lakóparkban valamint ...

Eladó lakás

Szombathely

Szombathely zöldövezeti, dinamikusan fejlődő városrészén, energiahatékony, ...

Eladó lakás

Szombathely

Szombathely zöldövezeti, dinamikusan fejlődő városrészén, energiahatékony, ...

Eladó lakás

Szombathely

Szombathely zöldövezeti, dinamikusan fejlődő városrészén, energiahatékony, ...