Eladó lakás Szombathely 86 730 250 Ft

Leírás

KÖLTŐK UTCÁJA, POÉTA- HÁZ

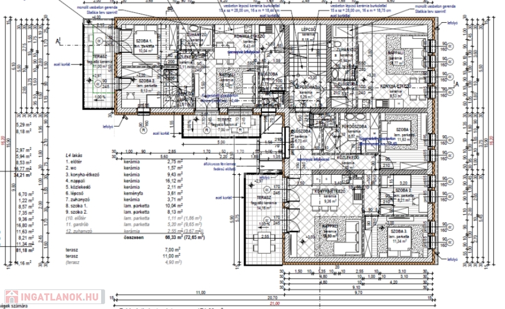
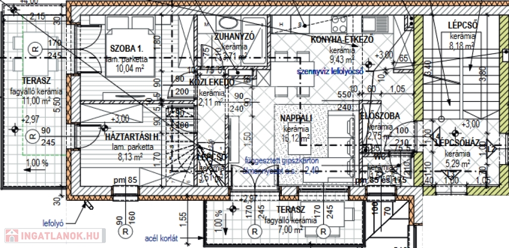
Szombathely belvárosában, a " költők utcái " városrészen csendes, átmenő forgalomtól mentes utcában hat lakásos társasházban, prémium kategóriás lakások, közös kertkapcsolattal eladók. Az ingatlanban mindenki számára alkalmas lakások épülnek. Egy szobástól - négy szobásig, 34 m2 - 86 m2 között. Különlegessége, hogy az első emelet egyik lakása belső kétszintes. Az ingatlan magas műszaki tartalommal készül. A lakásokat elválasztó falazat hanggátló téglából épül. Homlokzatára 15 cm vastag EPS szigetelés kerül, dryvit vakolattal. Műanyag, fokozottan hang-és hőszigetelt nyílászárói kívül barna belül fehér színű tokszerkezettel 3 rétegű üvegezéssel készül, redőnyökkel felszerelve. A tetőtérben Fakro ablakokra tervezett, hővédő árnyékolókkal. A fűtés, meleg vízellátás a mai kor követelményeinek leginkább megfelelő házközponti LG hőszivattyús fűtésrendszer kerül kialakításra, H tarifával, minden helyiségben padlófűtéses hőleadással. Napi és heti programozású digitális termosztátokkal. A fürdőszobákban a padlófűtés mellett, törölköző szárítós radiátorok lesznek kialakítva. A lakások nappalijában hűtő-fűtő klíma kerül. Villanyhálózata 3 x 16 Amper teljesítményű. Választható hideg-meleg burkolatok, szaniterek, csaptelepek, beltéri ajtók. Zárt, parkosított udvarában felszíni parkolók, fedett gépkocsibeállók vásárolhatók. Az ingatlan klasszikus, igényes külső megjelenése belvároshoz méltó. A hirdetésben szereplő lakás L4-es 86 m2
(nettó 73.52 m2) + 11 m2, 7 m2, 5,92 m2 teraszokkal első emeleti belső kétszintes. Amerikai konyhás nappali, 3 hálószoba, előszoba, közlekedő, gardrób, 2 fürdőszoba, külön wc került kialakításra.
Családi Otthon teremtési kedvezmény plusz hitel igényelhető. CSOK vásárlás esetén 5% áfa visszaigényelhető és teljes illeték mentesség.
Hitel ügyintézésben is segítünk.
Várható átadás: 2024. július 31.

Lakás részletei

Ár: 86 730 250 Ft
Méret: 86 négyzetméter
Azonosító: 11288573
Irodai azonosító: 358265
Cím: Luxus, kényelem
Emelet: 1. emelet
Építőanyag: Tégla
Fűtés jellege: Hőszivattyú
Ingatlan állapota: Kitűnő
Komfort fokozat: Dupla komfort
Építési év: Új építésű
Tulajdonviszony: Saját
Kilátás: kertre néző
Egész szobák: 4

Egyéb jellemzők

  • Erkély
  • Garázs
  • Lift
  • Pince
  • Tároló

Térkép

Hasonló lakás hirdetések

Eladó lakás

Szombathely

Modern megjelenésű, értékálló, kényelmes és élhető lakóparkban valamint ...

Eladó lakás

Szombathely, Joskar-Ola lakótelep

Szombathelyen a városközpont közelében új építésű lakások eladóak ...

Eladó lakás

Szombathely

Eladó Szombathelyen egy 85 nm-es, nappali + 4 szobás, első emeleti, új ...

Eladó lakás

Szombathely

Modern megjelenésű, értékálló, kényelmes és élhető lakóparkban valamint ...

Hasonló lakás hirdetések

Eladó lakás

Szombathely

Modern megjelenésű, értékálló, kényelmes és élhető lakóparkban valamint ...

Eladó lakás

Szombathely, Joskar-Ola lakótelep

Szombathelyen a városközpont közelében új építésű lakások eladóak ...

Eladó lakás

Szombathely

Eladó Szombathelyen egy 85 nm-es, nappali + 4 szobás, első emeleti, új ...

Eladó lakás

Szombathely

Modern megjelenésű, értékálló, kényelmes és élhető lakóparkban valamint ...