Eladó lakás Tét 36 900 000 Ft

Leírás

Tét, Forrásház 2.


Tét fejlődő, jelenleg megújuló településközponti részén
az előző évben sikeresen befejeződött társasházi beruházása
után, megindult a Forrásház kettes ütem kivitelezése.Ha szeretne egy újabb remek beruházásban új megújuló energiás, alacsony rezsijű liftes társasházban lakást vásárolni itt az alkalom !



A hamarosan elkészülő Győr – Pápa gyorsforgalmi
út elkészültével mindkét város percek alatt elérhető lesz.



Ebben az épület komplexumban 48 lakás, 3
üzlethelyiség, egy étterem valamint garázsok, teremgarázs és
tárolók kerülnek megépítésre. A már átadott Forrásház első ütemében már működő pizzéria, kávézó, minőségi élelmiszereket áruló üzletek találhatók.

A lakások 33,0 és 73,0 m2 alapterűek, az áruk fűtés
kész szerkezetkész állapotban 15,9 millió és 35,6 millió között
alapterülettől függően változó.

A lakásokhoz garázs, tároló, teremgarázs beálló
igény és lehetőség szerint vásárolható.



A lakások magas műszaki tartalommal és első osztályú
kivitelezéssel készülnek. A lakások fűtése és a nyári hűtése
hőszivattyús megoldással történik.



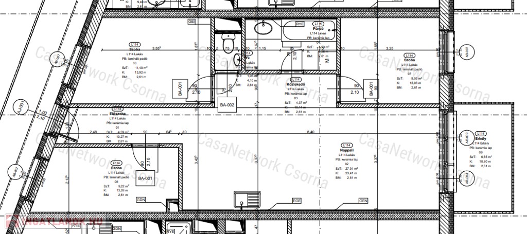
A jelenleg meghirdetett kétszobás lakás L114 az alábbi helyiségekből áll : nappali, három hálószoba, konyha, zuhanyzós fürdő, külön wc, erkély. Össz alapterülete 72,5 m2 + 6,65 m2 erkély.Az ár fűtéskész - szerkezetkész állapotra vonatkozik. Amennyiben bővebb információra van szüksége, hívjon bármikor.Simon Kázmér 30/216 5557


Lakás részletei

Ár: 36 900 000 Ft
Méret: 73 négyzetméter
Azonosító: 10700887
Irodai azonosító: 164600384
Emelet: 1. emelet
Építőanyag: Tégla
Ingatlan állapota: Kitűnő
Egész szobák: 4