Eladó lakás Vác 97 500 000 Ft

Leírás

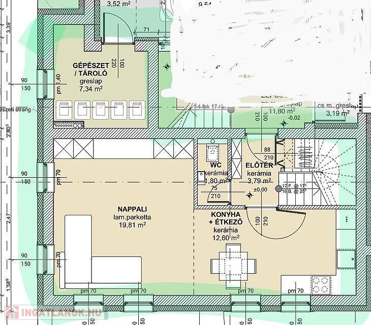
Kisvácon Dunaparttól 2 perc sétára, eladásra kínálunk egy 2026-ban befejezésre kerülő, jelenleg kivitelezés alatt álló, modern belső kétszintes lakást, júliusi átadással.

A lakás 3 szobával, amerikai konyhás nappalival, 2 fürdőszobával és külön spejzzel rendelkezik.

A komfortot egy BOSCH kondenzációs gázkazán biztosítja padlófűtéssel, valamint fűtő-hűtő klíma is beszerelésre kerül. A masszív műszaki tartalom része a 30 cm-es porotherm okos tégla falazat és a 15 cm dryvit hőszigetelés, így a lakás energetikailag kifejezetten kedvező, nagyon alacsony rezsivel lehet számolni.

Parkolás igény esetén az udvarban megoldható, 1.500.000-Ft/parkolóhely, továbbá a ház előtt ingyenes utcai parkolás is rendelkezésre áll.

A lakás Vác északnyugati részén található, így a csúcsforgalom elkerülhető, mivel az autópálya-felhajtó a közelben, gyorsan elérhető.

Iskolák a közelben találhatóak, emellett bolt, gyógyszertár, orvosi rendelő és benzinkút is pár perc sétára elérhető.

Az épületben külön lehet tárolót vásárolni 650.000-Ft/nm áron.

A szanitereket 250.000-Ft/fürdőszoba, hideg/meleg burkolatokat 5.000-Ft/nm-ig tartalmazza az ár. Amennyiben más burkolatokat, szanitereket választana a felár rászámolódik a feltüntetett árra.

Nyílászárók a legmodernebb tripla üveges thermo ablakok, redőny nem kerül beszerelésre, külön kérésre természetesen kivitelezhető.

Konyhabútor nem tartozik az ingatlanhoz, egyedi konyhabútorok elkészítését a kivitelező vállalja.

Kérdésével, illetve megtekintési szándékával keresse irodánkat.

Amennyiben hitelre lenne szüksége új otthonának megvásárlásához, profi, bankfüggetlen hitelközvetítő kollegáink díjmentesen állnak rendelkezésükre.

Lakás részletei

Ár: 97 500 000 Ft
Méret: 100 négyzetméter
Azonosító: 11595761
Irodai azonosító: 24544
Építőanyag: Kérdezzen rá a hirdetőtől »
Fűtés jellege: Egyedi
Ingatlan állapota: Átlagos
Egész szobák: 4

Hasonló lakás hirdetések

Eladó lakás

Vác

Vác kedvelt városrészében, Deákváron kínálunk eladásra egy világos ...

Hasonló lakás hirdetések

Eladó lakás

Vác

Vác kedvelt városrészében, Deákváron kínálunk eladásra egy világos ...