Eladó lakás Veszprém 128 800 000 Ft

Leírás

Különleges ajánlat: az első 2 lakás tulajdonosa ingyen felszíni beállót kap ajándékba.
Modern, igényesen kivitelezett lakások zárt, biztonságos udvarban, nyugodt környezetben – ideális választás családok számára.

Főbb jellemzők:
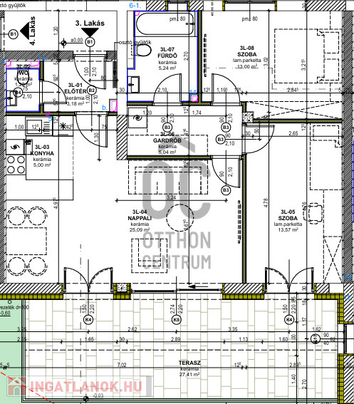
-Átgondolt, praktikus elrendezés, a lakás alapterülete 71,40 nm
-Saját, 9,20 nm-es tároló minden lakáshoz
-Tágas, 1308 nm-es telek
-Minőségi anyaghasználat és esztétikus burkolatok

Műszaki tartalom:
-fűtése hőszivattyúval megoldott, így rendkívül költséghatékony a fenntartása
-3 rétegű hőszigetelt műanyag ablakok fém külső borítással
-árnyékolás elektromos zsalúziával megoldott
-falazata 30 cm tégla, rajta 18 cm Austrotherm grafit hőszigetelés
-lakásválaszfal: 5 cm YTONG PEF előfalazó, 25 cm Porotherm 25 AKU Z, 5 cm YTONG PEF előfalazó
-közbenső födém: 30 cm vasbeton, 7,5 cm aljzatbeton, 6 cm Austrotherm EPS AT-L2 lépésálló hangszigetelés, padlófűtés, burkolat
-zárófödém: 1 rtg. páraáteresztő fólia, 15 cm ásványgyapot hőszigetelés faszerkezet között, 10 cm ásványgyapot hőszigetelés faszerkezet között, 1 rtg. párazáró fólia, 2 rtg. 12,5 mm RF tűzgátló gipszkarton burkolat bordavázon
-tető fedése Bramac cserép
-villany mérete lakásonként 3x20A + 3x10A H tarifa

Miért érdemes választani:
-Modern, energiatakarékos otthon
-Biztonságos, zárt udvari elhelyezkedés
-Kiváló ár-érték arány
-Élhető, jól kialakított terek

Átadási határidő: 2026.09.30.

Felszíni parkoló 3M Ft-ért vásárolható hozzá!

Ne maradjon le róla – az ingyenes beálló csak az első 2 lakás vásárlójának jár.
BANKFÜGGETLEN hitelben és teljes körű ügyintézésben segítünk!

Lakás részletei

Ár: 128 800 000 Ft
Méret: 94 négyzetméter
Azonosító: 11613840
Emelet: Földszint
Építőanyag: Tégla
Ingatlan állapota: Kitűnő
Kilátás: utcai
Egész szobák: 3

Egyéb jellemzők

  • Erkély
  • Garázs
  • Lift
  • Kertkapcsolat
  • Tároló
  • Kocsibeálló

Hasonló lakás hirdetések

Eladó lakás

Veszprém

Tágas, nagy erkélyes lakás rengeteg lehetőséggel! A lakás jelenleg nagy, ...

Eladó lakás

Veszprém

Ez a 2019-ben épült, napfényes penthouse nemcsak lenyűgöző, hanem otthonos ...

Eladó lakás

Veszprém

Különleges ajánlat: az első 2 lakás tulajdonosa ingyen felszíni beállót ...

Eladó lakás

Veszprém

Árcsökkenés! Veszprém kedvelt városrészében, a Takácskertben, 1 db ...

Hasonló lakás hirdetések

Eladó lakás

Veszprém

Tágas, nagy erkélyes lakás rengeteg lehetőséggel! A lakás jelenleg nagy, ...

Eladó lakás

Veszprém

Ez a 2019-ben épült, napfényes penthouse nemcsak lenyűgöző, hanem otthonos ...

Eladó lakás

Veszprém

Különleges ajánlat: az első 2 lakás tulajdonosa ingyen felszíni beállót ...

Eladó lakás

Veszprém

Árcsökkenés! Veszprém kedvelt városrészében, a Takácskertben, 1 db ...