Eladó lakás Veszprém 96 800 000 Ft

Leírás

Különleges ajánlat: az első 2 lakás tulajdonosa ingyen felszíni beállót kap ajándékba.
Modern, igényesen kivitelezett lakások zárt, biztonságos udvarban, nyugodt környezetben – ideális választás családok számára.

Főbb jellemzők:
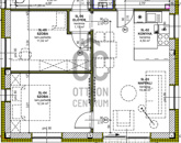
-Átgondolt, praktikus elrendezés, a lakás alapterülete 61,80 nm
-Saját, 8, 30 nm-es tároló minden lakáshoz
-Tágas, 1308 nm-es telek
-Minőségi anyaghasználat és esztétikus burkolatok

Műszaki tartalom:
-fűtése hőszivattyúval megoldott, így rendkívül költséghatékony a fenntartása
-3 rétegű hőszigetelt műanyag ablakok fém külső borítással
-árnyékolás elektromos zsalúziával megoldott
-falazata 30 cm tégla, rajta 18 cm Austrotherm grafit hőszigetelés
-lakásválaszfal: 5 cm YTONG PEF előfalazó, 25 cm Porotherm 25 AKU Z, 5 cm YTONG PEF előfalazó
-közbenső födém: 30 cm vasbeton, 7,5 cm aljzatbeton, 6 cm Austrotherm EPS AT-L2 lépésálló hangszigetelés, padlófűtés, burkolat
-zárófödém: 1 rtg. páraáteresztő fólia, 15 cm ásványgyapot hőszigetelés faszerkezet között, 10 cm ásványgyapot hőszigetelés faszerkezet között, 1 rtg. párazáró fólia, 2 rtg. 12,5 mm RF tűzgátló gipszkarton burkolat bordavázon
-tető fedése Bramac cserép
-villany mérete lakásonként 3x20A + 3x10A H tarifa

Miért érdemes választani:
-Modern, energiatakarékos otthon
-Biztonságos, zárt udvari elhelyezkedés
-Kiváló ár-érték arány
-Élhető, jól kialakított terek

Átadási határidő: 2026.09.30.

Felszíni parkoló 3M Ft-ért vásárolható hozzá!

Ne maradjon le róla – az ingyenes beálló csak az első 2 lakás vásárlójának jár.
BANKFÜGGETLEN hitelben és teljes körű ügyintézésben segítünk!

Lakás részletei

Ár: 96 800 000 Ft
Méret: 72 négyzetméter
Azonosító: 11613842
Építőanyag: Tégla
Ingatlan állapota: Kitűnő
Kilátás: utcai
Egész szobák: 3

Egyéb jellemzők

  • Erkély
  • Garázs
  • Lift
  • Kertkapcsolat
  • Tároló
  • Kocsibeálló

Hasonló lakás hirdetések

Eladó lakás

Veszprém

Veszprém történelmi belvárosában, patinás polgári épületben, tágas-világos ...

Eladó lakás

Veszprém

ÚJ ÉPÍTÉSŰ, AZONNAL KÖLTÖZHETŐ OTTHON VESZPRÉM CSENDES, KEDVELT RÉSZÉN! Veszprém ...

Eladó lakás

Veszprém

Veszprémben az Egyetemvárosrész zöldövezeti részén, téglaépítésű, ...

Eladó lakás

Veszprém

Eladó egy 44 m2-es és egy 53 m2-es panellakas két rendezett lépcsőházú, ...

Hasonló lakás hirdetések

Eladó lakás

Veszprém

Veszprém történelmi belvárosában, patinás polgári épületben, tágas-világos ...

Eladó lakás

Veszprém

ÚJ ÉPÍTÉSŰ, AZONNAL KÖLTÖZHETŐ OTTHON VESZPRÉM CSENDES, KEDVELT RÉSZÉN! Veszprém ...

Eladó lakás

Veszprém

Veszprémben az Egyetemvárosrész zöldövezeti részén, téglaépítésű, ...

Eladó lakás

Veszprém

Eladó egy 44 m2-es és egy 53 m2-es panellakas két rendezett lépcsőházú, ...