Eladó lakás Zalaegerszeg, Belváros, 53 380 000 Ft

Leírás

Fedezze fel álmai lakását a belvárosban!
Megvételre kínálok egy olyan otthont, ahol a design, a kényelem és a funkcionalítás tökéletes harmóniában van. A Mártírok úti társasházban várja Önt álmai lakása, amely minden igényt kielégít. A legjobb minőségű anyagok felhasználásával és precíz kivitelezéssel épül.

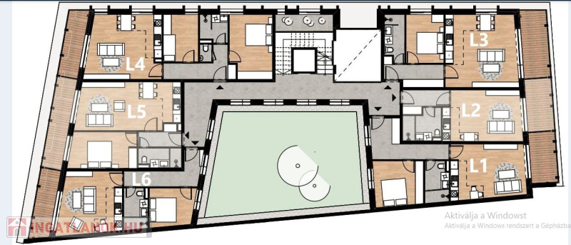
GALERI társasház Zalaegerszeg belvárosában, csendes lakóövezetben épül, három emeletével mindössze 14 lakásnak, két földszinti üzlethelyiségnek nyújtva tökéletes helyszínt. Modern tervezésének és praktikus kialakításának köszönhetően az álmaik otthonát keresőknek és a befektetőknek is ideális választás!

A lakás főbb jellemzői:
- 48,38 négyzetméter, alacsony energiaigényű, 10 négyzetméteres terasszal
-3 rétegű hőszigetelt üvegezésű műanyag ablakok és erkélyajtók, lakások bejárati ajtaja acélborítású, biztonsági ajtó
- lift
- extra hő- és hangszigetelt falazatok, födémek
- fűtés: lakás -termosztát vezérléssel ellátott egyedileg mért házközponti levegő- víz hőszivattyús rendszer, padlófűtés hőleadással
- hűtés: lakás -termosztát vezérléssel ellátott egyedileg mért házközponti levegő- víz hőszivattyús rendszer,magasfali fan-coil hűtéssel

Igény esetén gépkocsi beálló vásárolható. Várható átadás: 2027. Jnauár
Projekt bemutatása

Megvételre kínálok egy olyan otthont, ahol a design, a kényelem és a funkcionalítás tökéletes harmóniában van. A Mártírok úti társasházban várja Önt álmai lakása, amely minden igényt kielégít. A legjobb minőségű anyagok felhasználásával és precíz kivitelezéssel épül.

GALERI társasház Zalaegerszeg belvárosában, csendes lakóövezetben épül, három emeletével mindössze 14 lakásnak, két földszinti üzlethelyiségnek nyújtva tökéletes helyszínt. Modern tervezésének és praktikus kialakításának köszönhetően az álmaik otthonát keresőknek és a befektetőknek is ideális választás!

A társasház további főbb jellemzői:
- 32-115 négyzetméter közötti, alacsony energiaigényű, teraszos lakások
- Leier LKF kéregelemmel készülő vasbeton falszerkezet
-3 rétegű hőszigetelt üvegezésű műanyag ablakok és erkélyajtók, lakások bejárati ajtaja acélborítású, biztonsági ajtó
- lift
- extra hő- és hangszigetelt falazatok, födémek
- fűtés: lakás -termosztát vezérléssel ellátott egyedileg mért házközponti levegő- víz hőszivattyús rendszer, padlófűtés hőleadással
- hűtés: lakás -termosztát vezérléssel ellátott egyedileg mért házközponti levegő- víz hőszivattyús rendszer,magasfali fan-coil hűtéssel

További információért keressen bizalommal!



Igény esetén gépkocsi beálló vásárolható. Várható átadás: 2027. Januàr

Lakás részletei

Ár: 53 380 000 Ft
Méret: 48 négyzetméter
Azonosító: 11443400
Városrész: Belváros
Építőanyag: Tégla
Ingatlan állapota: Kitűnő
Kilátás: utcai
Egész szobák: 2

Egyéb jellemzők

  • Erkély
  • Garázs
  • Lift
  • Kertkapcsolat
  • Tároló
  • Kocsibeálló

Hasonló lakás hirdetések

Eladó lakás

Zalaegerszeg, Belváros

Fedezze fel álmai lakását a belvárosban! Megvételre kínálok egy olyan ...

Eladó lakás

Zalaegerszeg

Zalaegerszeg központjában öt lakásos társasházban földszinti ...

Eladó lakás

Zalaegerszeg, Belváros

Megvételre kínálok egy olyan otthont, ahol a design, a kényelem és a funkcionalítás ...

Eladó lakás

Zalaegerszeg

Ez a lakás az EARLY BIRD akcióban most 2.000.000.-Ft kedvezménnyel, 51.900.000.-Ft ...

Hasonló lakás hirdetések

Eladó lakás

Zalaegerszeg, Belváros

Fedezze fel álmai lakását a belvárosban! Megvételre kínálok egy olyan ...

Eladó lakás

Zalaegerszeg

Zalaegerszeg központjában öt lakásos társasházban földszinti ...

Eladó lakás

Zalaegerszeg, Belváros

Megvételre kínálok egy olyan otthont, ahol a design, a kényelem és a funkcionalítás ...

Eladó lakás

Zalaegerszeg

Ez a lakás az EARLY BIRD akcióban most 2.000.000.-Ft kedvezménnyel, 51.900.000.-Ft ...