Eladó lakás Zalaegerszeg 67 640 000 Ft

Leírás

Új lakást szeretne, saját ízlésének megfelelően Zalaegerszegen?

Íme, egy nagyszerű ajánlat Zalaegerszeg belvárosában,75,51 négyzetméteres lakás, 770 000Ft/nm-es áron!!!

A 9 lakásos társasházban 44-87 nm-es, 3 szobás lakások kerülnek kialakításra ,különálló garázsokban vagy zárt parkolóhelyeken biztosított a gépkocsik tárolása és védelme.

A tervezés során fontos szempont a beépített anyagok magas minősége , a költséghatékony fenntartás és az épületek értékállósága. A ház fűtését , illetve meleg víz ellátását , hőszivattyús rendszer biztosítja , lakásonkénti egyedi méréssel és szabályozással , padlófűtéssel.
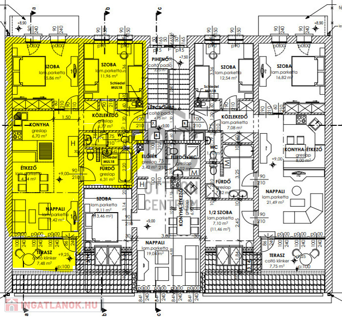
Az ingatlan az első emeleten helyezkedik el 88,22 m2 bruttó területű, ebből a 2 erkély mérete összesen 9,41 m2.
2 hálószoba, nappali, konyha, étkező, fürdő, 2 WC, előtér, közlekedő, terasz elrendezésű.


A projekt főbb jellemzői:
- belváros közeli , frekventált elhelyezkedés (Petőfi utca Ady - Mártírok közti részén)
- igényes , belvároshoz méltó külső megjelenés
- 9 prémium minőségű lakás funkcionálisan tervezett alaprajzokkal: 2 szobával, nappalival, erkélyekkel
- napfényes , déli - nyugati tájolású lakások
- fenntartható lakás , alacsony energiafelhasználás
- impozáns épület, kevésbé forgalmas belvárosi részen
- fürdő és WC külön helyiségben minden lakásban
- 3 rétegű nyílászárók , redőny , szúnyogháló , klíma kérhető
- Választható belső burkolatok , szaniterek , ajtók
- belső , zárt , kisméretű , parkosított udvar
- saját garázs vásárolható
- Családi Otthonteremtési Kedvezmény + Hitel igényelhető!

Az építkezés 70%-os készültségi szinten tart.

Az épület műszaki átadása: 2024 év eleje.

Lakás részletei

Ár: 67 640 000 Ft
Méret: 76 négyzetméter
Azonosító: 11562765
Irodai azonosító: U0045576-5027355
Emelet: 3. emelet
Építőanyag: Tégla
Fűtés jellege: Egyéb
Ingatlan állapota: Épülő
Építési év: Új építésű
Kilátás: utcai
Egész szobák: 3

Egyéb jellemzők

  • Erkély

Térkép

Hasonló lakás hirdetések

Eladó lakás

Zalaegerszeg, Belváros

Eladó a város szívében, kivételes adottságokkal rendelkező második ...

Eladó lakás

Zalaegerszeg, Belváros

Megvételre kínálok egy olyan otthont, ahol a design, a kényelem és a funkcionalítás ...

Eladó lakás

Zalaegerszeg

Ez a lakás az EARLY BIRD akcióban most 5.000.000.-Ft kedvezménnyel, 74.900.000.-Ft ...

Eladó lakás

Zalaegerszeg

Ez a lakás az EARLY BIRD akcióban most 5.000.000.-Ft kedvezménnyel, 72.900.000.-Ft ...

Hasonló lakás hirdetések

Eladó lakás

Zalaegerszeg, Belváros

Eladó a város szívében, kivételes adottságokkal rendelkező második ...

Eladó lakás

Zalaegerszeg, Belváros

Megvételre kínálok egy olyan otthont, ahol a design, a kényelem és a funkcionalítás ...

Eladó lakás

Zalaegerszeg

Ez a lakás az EARLY BIRD akcióban most 5.000.000.-Ft kedvezménnyel, 74.900.000.-Ft ...

Eladó lakás

Zalaegerszeg

Ez a lakás az EARLY BIRD akcióban most 5.000.000.-Ft kedvezménnyel, 72.900.000.-Ft ...