Eladó lakás Zamárdi 84 000 000 Ft

Leírás

Prémium lakásokat kínálunk megvételre Zamárdi szívében, a Balaton partjától mindössze 100 m távolságra.

A lakások terasszal, kertkapcsolattal, napozó terasszal, autó beállóval + autótöltési lehetőséggel, tárolóval épülnek.
A házban 8 személyes felvonó működik, az épület akadálymentesített.
Az udvar parkosított.
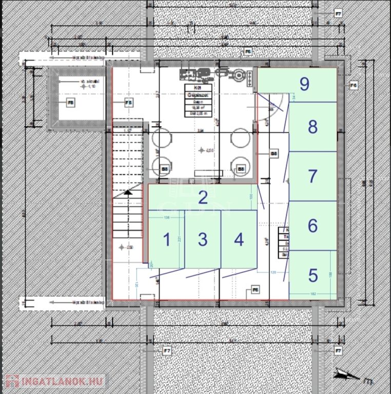
Az ingatlanban 9 db lakás épül.

Emeleti 6-os lakás beosztása és vételára:

A lakás nettó alapterület: 47 nm.
+ Terasz 0 nm,
+ Tároló 3,24 nm,
+ Napozó terasz 10,32 nm,
+ Autó beálló 17,3 nm,
---------------------------------
Összesen: 84.000.000.-Ft

Az ingatlan ideális választás mindazok számára, akik modern, energiatakarékos otthont, illetve hosszú távon is értékálló befektetést keresnek a Balaton közvetlen közelében.

Főbb jellemzők:
• Letisztult, modern megjelenés, magas színvonalú kivitelezés
• A+++ energiaosztály – alacsony rezsiköltség, fenntartható működés
• Már csak 7 apartman, különböző méretekben, átgondolt alaprajzokkal

Műszaki tartalom:
- vasbeton tartószerkezet, külső falak 25 cm SILKA tégla+ 30 cm Multipor szigetelés, belső válaszfalak 12 cm,
- 3 rétegű fehér nyílászáró + elektromos alumínium redőny+
szunyogháló ( távolról vezérelhető)
- többponton záródó bejárati ajtók + elegáns kilincsgarnitúra,
- minden lakás saját főmérővel rendelkezik 1x 32 A kapacitással,
- TV+ LAN csatlakozó, riasztó előkészítés,
- Napelemekkel működő hőszivattyú rendszere biztosítja a hűtést-fűtést
( fan-coil), melegvíz ellátást, közös területek, felvonó áramellátását,
elektromos autó töltést,
- egyedi hőmennyiségmérők + programozható szobatermosztátok,
- a lakások előkészítve vannak okosotthon rendszerek teljes skálájára.

Birtokbaadás: 2 hónap

Irodánk 30 éves szakmai tapasztalattal áll ügyfelei rendelkezésére!

Várom szíves megkeresését!

Lakás részletei

Ár: 84 000 000 Ft
Méret: 67 négyzetméter
Azonosító: 11595579
Irodai azonosító: 386486
Cím: Balatonhoz közel
Emelet: 1. emelet
Építőanyag: Tégla
Fűtés jellege: Hőszivattyú
Ingatlan állapota: Kitűnő
Komfort fokozat: Összkomfort
Építési év: Új építésű
Tulajdonviszony: Saját
Kilátás: udvari
Egész szobák: 2

Egyéb jellemzők

  • Erkély
  • Garázs
  • Lift
  • Pince
  • Tároló

Térkép

Hasonló lakás hirdetések

Eladó lakás

Zamárdi

A Balaton déli partján, Zamárdiban 136 m2-es 4 hálószobás ház eladó. ...

Hasonló lakás hirdetések

Eladó lakás

Zamárdi

A Balaton déli partján, Zamárdiban 136 m2-es 4 hálószobás ház eladó. ...