Eladó panzió Badacsonytomaj 229 000 000 Ft

Leírás

A Gold Balaton Home Ingatlaniroda megvételre kínálja a 183100283-es sorszámú BADACSONYI panzióként üzemeltetett hétvégi házat.

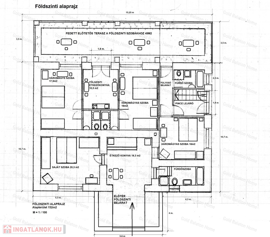
Badacsony központjában lévő impozáns, emeletes, felújított épület, balatoni és badacsonyi panorámával, 150 m-re a strandtól, valamint a hajókikötőtől. Az ingatlanban összesen 7 kisebb-nagyobb fürdőszobás szoba került kialakításra, szintenként közös konyha-étkezővel, valamint egy privát használatú utcafronti apartmanlakás (szoba, konyha-étkező, fürdő). Szeparált, külső feljáraton megközelíthető emelet. A fűtéssel rendelkező ingatlan, akár egész évben, gazdaságosan üzemeltethető.


Műszaki paraméterek:

- 1960-ban szepezdi vörös kőből elkezdett építkezés, 1975-ös befejezés

- 40 cm-es energiahatékony kőfalazat, tégla válaszfalak

- felújítások: 2000-ben fürdők kialakítása; 2018-ban nyílászárok cseréje és a tetőhéjalás, bitumenes zsindellyel; 2018-ban fűtés korszerűsítés

- thermo műanyag nyílászárók, dupla üvegezéssel, szúnyoghálóval

- fűtés, melegvíz: a 45 m2-es pincében található kombi gázkazánnal, vagy vegyes tüzelésű kazánnal

- a szobák saját termosztáttal rendelkeznek


Az ingatlan egyéb jellemzői:

- parkolási lehetőségek a zárt udvaron belül

- parkosított, rendezett, körbekerített terület, virágokkal, termő gyümölcsfákkal

- manzárt tető – plusz 5 szobás bővítésére alkalmas Az ingatlan irányára, igény szerint a panzió teljes bútorzatát tartalmazza!!


Irodánk szolgáltatásai igény esetén: ügyvéd, energetikai tanúsítvány, hitelügyintézés, értékbecslés, statikus, földmérő, belsőépítész.

Biztonság, szakértelem - GOLD BALATON HOME - „Élj ott, ahol mások nyaralnak”

Panzió részletei

Ár: 229 000 000 Ft
Méret: 275 négyzetméter
Azonosító: 11532102
Irodai azonosító: 183100283
Telek: 1796 Négyzetméter
Építőanyag: Kő és tégla
Fűtés jellege: Cirkó
Fűtés módja: Gáz
Ingatlan állapota: Felújított
Jelleg: szálloda
Komfort fokozat: Dupla komfort
Építési év: 50 évesnél régebbi
Telekterület típusa: Négyzetméter

Hasonló panzió hirdetések

Eladó panzió

Badacsonytomaj

Panorámás, felújított, vízközeli panzió Badacsony ...

Hasonló panzió hirdetések

Eladó panzió

Badacsonytomaj

Panorámás, felújított, vízközeli panzió Badacsony ...