Eladó telek/földterület Bogács 39 800 000 Ft

Leírás


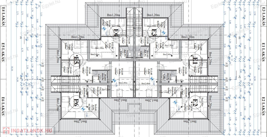
Megvételre kínálunk Borsod-Abaúj-Zemplén megyében, Bogácson, 1500 nm-es építési telket egy 12 lakásos társasház érvényes építési engedélyével együtt. Megvételre kínálunk Borsod-Abaúj-Zemplén megyében, Bogácson, 1500 nm-es építési telket egy 12 lakásos társasház érvényes építési engedélyével együtt.

A telek összközműves, tehát megtalálható a víz, villany, gáz, csatorna, és a TERMÁLVÍZ.



Beépítési mód: Szabadon álló

ÉPÍTÉSI ÖVEZET: Lke. 4. (Kertvárosi, lakóházas övezet)



Az újonnan kialakítható építési telek legkisebb területe (m2) 1500 Legnagyobb beépítettség terepszint felett (%) 25

Legnagyobb beépítettség terepszint alatt (%) 25

Legnagyobb szintterületi mutató (épület m2 / telek m2) 0,6 Legnagyobb építménymagasság (m) 6,0

Legkisebb zöldfelületi arány (%) 50



Telek beépítési terheléseinek tervezett paraméterek összefoglalása:



Telek mérete (m2) 1500m2 megfelel

Beépítettség terepszint felett (%) 24,80

Beépítettség terepszint alatt (%) 0,0

Szintterületi mutató (épület m2 / telek m2) 0,53

Építménymagasság (m) 5,87m

Zöldfelületi arány (%) 50,43%

 

A zöldfelületi arány számításánál figyelembe vettük az utcai kerítést, a gépkocsi behajtót és területen belüli lehetséges járdákat is.



A Bükk-hegység lábánál a Hór és Szoros patak völgyében fekvő Bogács egyre népszerűbb üdülőhely. A település a Bükkaljai Borvidék központja, a térség riolittufába vájt pincéinek borait a fürdő látogatói is megkóstolhatják. Emellett gyönyörködhetnek a Bükki Nemzeti Park egyedülálló természeti kincseiben, madár- és állatvilágában.

 

A termálfürdő gyógyvízét az 1950-es években tárták fel kőolajkutatás közben. A fürdő 76 fokos hévize közel 500 méter mélyről tör fel, ami 2001-ben kapta meg a hivatalos gyógyvíz minősítést.

 

Hitel, CSOK igénylésben díjmentes ügyintézéssel állunk rendelkezésére! Nálunk kiválaszthatja az Ön számára legkedvezőbb ajánlatot.

 

Várom megtisztelő érdeklődésüket.

 

Telek/földterület részletei

Ár: 39 800 000 Ft
Méret: 1 500 Négyzetméter
Azonosító: 11533567
Irodai azonosító: 209001897
Telek: 1500 Négyzetméter
Besorolás: Építési telek
Csatorna: Telken belül
Gáz: Telken belül
Villany: Telken belül
Víz: Telken belül

Egyéb jellemzők

  • Zárt kert

Hasonló telek/földterület hirdetések

Eladó telek/földterület

Bogács

Eladásra kínálok, Borsod-Abaúj-Zemplén megyében, Bogácson, 1500 nm-es ...

Hasonló telek/földterület hirdetések

Eladó telek/földterület

Bogács

Eladásra kínálok, Borsod-Abaúj-Zemplén megyében, Bogácson, 1500 nm-es ...