Eladó telek/földterület Budapest IV. ker 97 000 000 Ft

Leírás

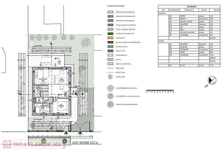
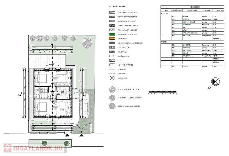
Megyeren, csendes, családiházas övezetben, eladásra kínálunk egy 218 nm-es telket engedélyezett építési tervekkel.

A telek per, teher és igénymentes, átadási ideje: azonnal.

A telekre egy bruttó 87 nm-es, belső kétszintes, 4 szobás családi ház építhető+autóbeálló.

A kerítés teljesen új, illetve megtörtént a ház beton alapzatának kiöntése is.

A közelben megtalálható a 122E, a 30-as, 196-os és a 147-es busz megállója. Újpest-központ és az M3-as metróállomás busszal 15 perc alatt megközelíthető. A belváros tömegközlekedéssel és autóval egyaránt rövid időn belül elérhető.

A hirdetésben szereplő adatok tájékoztató jellegűek!

Egyes ingatlanjaink esetében csere és ingatlanbeszámítás is lehetséges. Továbbá ügyfeleink részére keresünk eladó ingatlant, tulajdonrészt, vagy haszonélvezeti joggal terhelt ingatlant Budapesten és az agglomerációban. A részletekről kérjük érdeklődjön telefonon.

Bankfüggetlen hiteltanácsadóink, az ország összes pénzintézete közül gyorsan és gördülékenyen találja meg az Önnek legmegfelelőbb konstrukciót, egyedi, személyre szabott kedvezményekkel.

A KÖZVETÍTÉS VEVŐINK RÉSZÉRE DÍJMENTES!

Telek/földterület részletei

Ár: 97 000 000 Ft
Méret: 218 Négyzetméter
Azonosító: 11581200
Irodai azonosító: 23966
Telek: 218 Négyzetméter
Besorolás: Építési telek
Jelleg: belterület