Eladó telek/földterület Budapest XIV. ker 420 000 000 Ft

Leírás

Zuglóban, frekventált helyen eladó fejlesztési telek engedélyezett, 13 lakásos társasház projekttel!

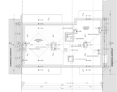
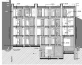
Eladó egy 1077 m²-es építési telek Zugló egyik legkeresettebb részén, érvényes építési engedéllyel rendelkező, prémium társasházprojekttel!

A tervezett beruházás jellemzői:

-13 lakás 4 szinten, jól átgondolt alaprajzokkal

-Pinceszinten 13 gépkocsibeálló

-Lift

-Külön tárolók a lakók részére

-Közös helyiségek (pl. babakocsi-/kerékpártároló)

-Erkélyek, teraszok, valamint tetőteraszos lakások

-Zöldtető, környezetbarát és esztétikus kialakítással

-Korszerű műszaki tartalommal és energiatakarékos megoldásokkal tervezve

Elhelyezkedés:

A projekt Zugló frekventált, jól megközelíthető részén található, csendes utcában, de közel tömegközlekedéshez, bevásárlási lehetőségekhez, iskolákhoz és egyéb szolgáltatásokhoz.

A projekt előnyei:

-Azonnal induló beruházás – engedélyezett tervek

-Magas hozamú, jól értékesíthető lakások

-Kimagasló lokáció és műszaki tartalom

-Kiváló lehetőség fejlesztők, befektetők számára

A hirdetésben feltüntetett adatok és információk csak tájékoztató jellegűek, jogi kötelezettséggel nem bíró jognyilatkozatnak minősülnek, mely nem tekinthető ajánlat tételnek és nem járnak az eladóra nézve kötelező ajánlati kötöttséggel.

Amennyiben felkeltettem az érdeklődését vagy bármely további kérdése lenne, keressen bizalommal.

Akár hétvégén is!

CSA

Telek/földterület részletei

Ár: 420 000 000 Ft
Méret: 1 077 Négyzetméter
Azonosító: 11572489
Irodai azonosító: 388341
Cím: ZUGLÓBAN ÉPÍTÉSI PROJEKT ELADÓ
Telek: 1077 Négyzetméter
Besorolás: Építési telek
Csatorna: Telken belül
Gáz: Telken belül
Jelleg: belterület
Villany: Telken belül
Víz: Telken belül

Térkép