Eladó telek/földterület Dozmat 14 990 000 Ft

Leírás

Szombathelytől mindössze 15 percre, Toronyban kínálunk eladásra egy 1218 nm-es építési telket.

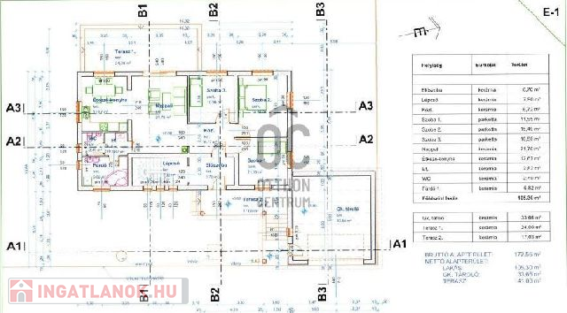
Egy 120 nm-es családi ház alapja, kész tervezete, építési engedélye már rendelkezésre áll.
A környék csendes, nyugodt. A telekről gyönyörű panoráma tárul elénk.

- beépíthetősége: 30%
- építménymagasság: 4,5 m
- övezet: FL

közművek:
- víz: utcán
- villany: bekötve
- gáz: nincs a településen
- csatorna: bekötve


További információért hívjon bizalommal!

Telek/földterület részletei

Ár: 14 990 000 Ft
Méret: 1 218 Négyzetméter
Azonosító: 11540634
Irodai azonosító: T040117
Cím: Vas megye Torony
Telek: 1218 Négyzetméter
Jelleg: belterület