Eladó telek/földterület Harta 120 000 000 Ft

Leírás

Eladó ipari csarnok a Duna kanyarulatában kiváló adottságokkal.
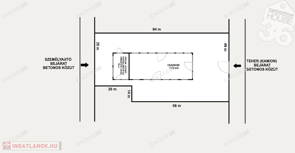
Megvételre kínálunk egy 1000 m2 -es ipari csarnokot amely 4388 m2 -es telken helyezkedik el.
Az ingatlan kiváló lehetőségeket biztosít ipari, gyártó, és logisztikai tevékenységekre, hiszen utánfutók, hajóalkatrészek gyártására használták.
Ez az ingatlan tökéletes választás vállalkozások számára ,akik egy jól megközelíthető, nagy területtel rendelkező, azonnal használható ipari csarnokot keresnek.

A csarnok főbb jellemzői:
- három ipari kapu a könnyű be és kirakodásért
- iroda, öltöző, tusoló és étkező tér a dolgozók kényelméért
- tetőtéri rész ( 76 m2) amely lakás vagy további iroda kialakítására alkalmas, dunaparti panorámával
- erős ipari infrastruktúra : 3 x 100 Amper áram, saját trafó
- masszív szerkezet, zsalukő betonnal kiöntve,5 cm szigetelés
- trapézlemez tető
- ventillátoros légbefúvós kályha

Ne hagyja ki ezt a remek lehetőséget!
Hívjon most, és tekintse meg személyesen!
Az iroda legfrissebb, aktuális kínálatát a HOUSE36 saját weboldalán találja!

Telek/földterület részletei

Ár: 120 000 000 Ft
Méret: 4 387 Négyzetméter
Azonosító: 11607958
Irodai azonosító: 3619245-4855331
Telek: 4387 Négyzetméter
Besorolás: Ipari telek
Jelleg: belterület

Térkép