A telek a Kőszeg, Panoráma körútról letérve a Forrás út jobboldalán található, a parkolóval szemben.
Ingatlan jellemzői:
-	tulajdoni lap szerint „kivett beépítetlen terület„  hrsz.: 905/1
-	1/1 tulajdonos, területen 48 m2 vízvezetési szolgalmi jog van bejegyezve
-	1580 m2 terület (nagyjából téglalap alakú) telek végében a Sándor-forrás található
-	HÉSZ szerint Üh K/1 besorolású (üdülőházas terület, általános szabályozás)
-	víz, villany, T-home a telekhatáron elérhető
-	beépítési mód: szabadon, max: 10 % beépíthetőség, max: 5 m beépítési magasság, megengedett legkisebb zöldterület 
        min: 80 %
-       hegyoldal, fás terület
Építési lehetőség:
-	tulajdonos a képeken látható faházat terveztette a hegyoldalra, de más megoldás is lehetséges
-	szükség esetén a rendelkezésre álló dokumentációkat átadja
-	építési engedélyt nem kérte meg
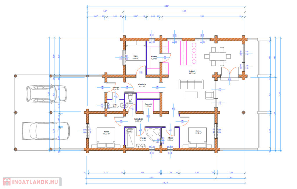
Tervezett ház:
-	kb. 105 m2 lakóterület és kb. 18 m2 terasz
-	3 szoba 
-	nappali-konyha-étkező
-	fürdőszoba
-	mosdó
-	2 db. WC
-	gardrób
-	közlekedő
-	kamra
-	szélfogó
-	2 db. gépkocsi parkolására kialakított beálló
Lokáció:
-	Panoráma körúttól néhány méterre található
-	könnyen megközelíthető
-	a telek mellett patak található
-	kedvelt turista útvonalak haladnak el mellette
-	csendes, nyugodt környék, de közúton könnyen megközelíthető
Ajánlom azoknak, aki a szinte érintetlen természetben szeretnének élni, vagy időnkét elvonulni a világ zajától, esetleg a baráti körrel zavartalanul időt eltölteni.
Egyeztessen időpontot! Tekintse meg! TEGYEN Ajánlatot!                                                            
| Ár: | 7 900 000 Ft | 
| Méret: | 1 580 Négyzetméter | 
| Azonosító: | 11570235 | 
| Cím: | 4961 Szombathely, Szabadságharcos utca 6. szám | 
| Telek: | 1580 Négyzetméter |