Eladó telek/földterület Tahitótfalu 84 900 000 Ft

Leírás

Praktikus földszintes elrendezés, modern technológia és falusi nyugalom – Tahitótfaluban, a központhoz közel !!!
2000 m²-es telken, 3 db ikerház, összesen 6 lakás --- 1 lakás már elkelt!


Tahitótfalu központjához közel, 2025-ben épülő, modern, földszintes ikerházakat kínálunk megvételre, eltérő méretekkel, 94–102 m² (+Terasz) alapterülettel, 260–270 m²-es saját telekkel.

A tágas és világos otthonokban amerikai konyhás nappali, étkező, három hálószoba, valamint kertkapcsolatos terasz várja új lakóit.

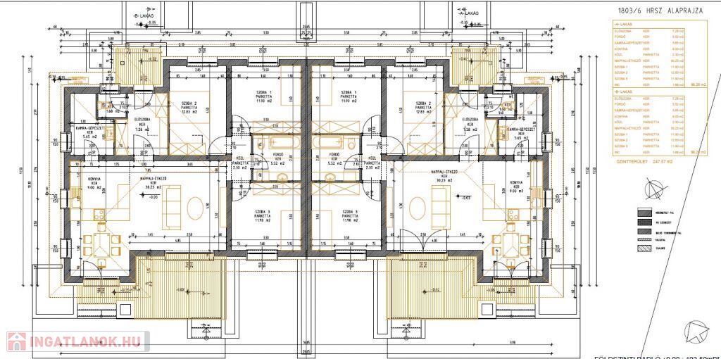
Helyiségek méretei (1 példa):
-Terasz: 20m²
-Hálószobák: 12 m², 11,5 m², 11,2 m²
-Nappali-étkető: 34 m²
-Konyha: 7.65 m²
-Fürdő + WC: 5,7 m²
-Kamra, gépészet: 4,4 m²
-Külön WC: 1,3 m²
-Előszoba: 7,1 m²
-Közlekedő: 6,1 m²
-Gépkocsi-beálló: 20 m²

Néhány műszaki jellemző:
-A Porotherm X-therm Rapid hőszigetelt tégla és a két lakás érintkezésnél a dupla falazat hangszigeteléssel gondoskodik a nyugodt otthoni környezetről.
-A 20 cm vastag homlokzati szigetelés és a 3 rétegű, modern nyílászárók energiatakarékosságot és kényelmet biztosítanak.
-A fűtésről Gree hőszivattyús rendszer gondoskodik, melyet korszerű gépészeti megoldások egészítenek ki.
- A tető Phorotherm kerámia, terrakotta cseréppel borított.
- Előkészítésre kerül a klíma beépítésének lehetősége is.

Környezet:
Az ingatlanok nyugodt, falusias hangulatú utcában helyezkednek el.
A mindennapi élethez szükséges intézmények (óvoda, iskola, orvosi rendelő, boltok, buszmegálló) pár perc sétával elérhetők!

Kinek ajánljuk :
-Fiatal pároknak, akik most kezdenek közös életet
-Gyermekes családoknak, akik szeretnének természetközeli, nyugodt környezetben élni
-Idősebbeknek, akik számára fontos a kényelem és a csend

Finanszírozás:
-A vásárláshoz CSOK Plusz és 3%-os kamattámogatott hitel is igénybe vehető.
-Új építésű otthonához 15% kezdő befizetéssel csatlakozhat !

Az építkezés már elkezdődött, tervezett átadás 2026 I. negyedév.

Részletes műszaki leírásért és megtekintésért várom hívását bizalommal!

Pálmai Judit

Telek/földterület részletei

Ár: 84 900 000 Ft
Méret: 270 Négyzetméter
Azonosító: 11567454
Irodai azonosító: 360151038-446
Cím: 2021 Tahitótfalu
Telek: 270 Négyzetméter
Csatorna: Telken belül
Gáz: Nincs
Villany: Telken belül
Víz: Telken belül

Egyéb jellemzők

  • Zárt kert