Eladó telek/földterület Tépe 73 000 000 Ft

Leírás


TELEPHELY, MŰHELY ELADÓ – KIVÁLÓ LOKÁCIÓ, BEFEKTETÉSNEK IS TÖKÉLETES! Eladó egy sokoldalúan hasznosítható telephely a 47-es főút közvetlen szomszédságában, mindössze 5 percnyire az M35-ös és M4-es autópályától!

 

Telek mérete: 3665 m²

 Épület: 200 m²-es, 50 cm vastag vályogtégla falazattal, új palatetővel és betonkoszorúval, így emelet ráépítése is lehetséges.

 

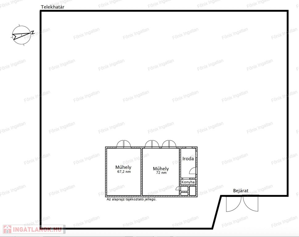
A telephely jelenlegi kialakítása:

 

* 3 beállásos műhely, egyik szerelőaknás

* Felújított iroda, konyha és szociális helyiségek

* Korszerűsített elektromos hálózat (3 x 16A, 2 külön mérő)

* Elektromos fűtőpanel és vegyes tüzelésű kályha

* Gázcsonk a telek előtt

* Riasztórendszer + kamerarendszer

 

Kiváló megközelíthetőség – a tágas telek lehetővé teszi a kamionos közlekedést és körbejárhatóságot is.

 

Befektetők figyelem! A telephely jelenleg 3 külön üzleti tevékenységnek ad helyet, a bérlők igény esetén szívesen maradnának, így a hely akár azonnali bevételt is termelhet új tulajdonosa számára!

 

Ipari tevékenységre, raktározásra, szervizként vagy akár irodai célra is kiváló lehetőség!

 

Ne hagyja ki – hívjon most a részletekért és tekintse meg személyesen!

Telek/földterület részletei

Ár: 73 000 000 Ft
Méret: 3 665 Négyzetméter
Azonosító: 11608486
Irodai azonosító: 705100315
Telek: 3665 Négyzetméter
Besorolás: Ipari telek
Csatorna: Telken belül
Gáz: Utcában
Villany: Telken belül
Víz: Telken belül

Egyéb jellemzők

  • Zárt kert