Eladó telek/földterület Vác 65 000 000 Ft

Leírás

Eladó panorámás építési telek Vác, 1025nm, tökéletes befektetés vagy otthon vár Önre!

Kivételes lehetőség befektetők számára, vagy akik álmaik otthonát szeretnék megépíteni és a tökéletes telket keresik! A Pest vármegyei Vác város Deákvár városrészében kínálunk eladásra egy lenyűgöző, 1025 nm-es telket, amely csendes lakóövezetben helyezkedik el.

A telek Lke-1 építési övezetbe tartozik, ahol:
-a legnagyobb megengedett beépítettség 20%,
-a megengedett legnagyobb építménymagasság 5 m,
-a megengedett legkisebb építménymagasság 3 m,
-a megengedett legnagyobb beépítettség terepszint alatt 20%
-a legkisebb kialakítandó zöldfelület 75%
-a megengedett legnagyobb szintterületi mutató 0,4 m2/m2
-a beépítés jellemző módja szabadon álló

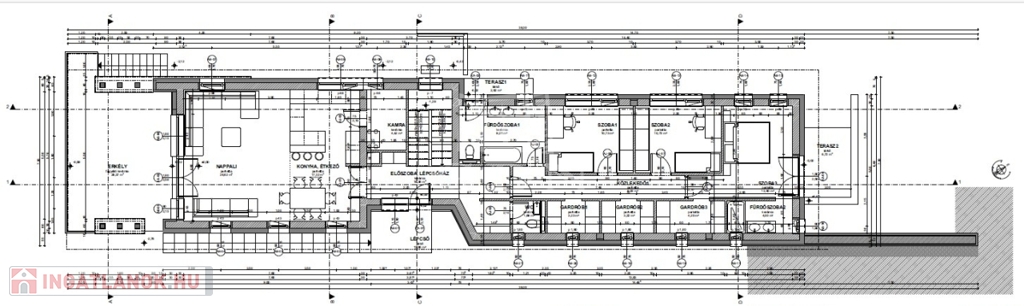
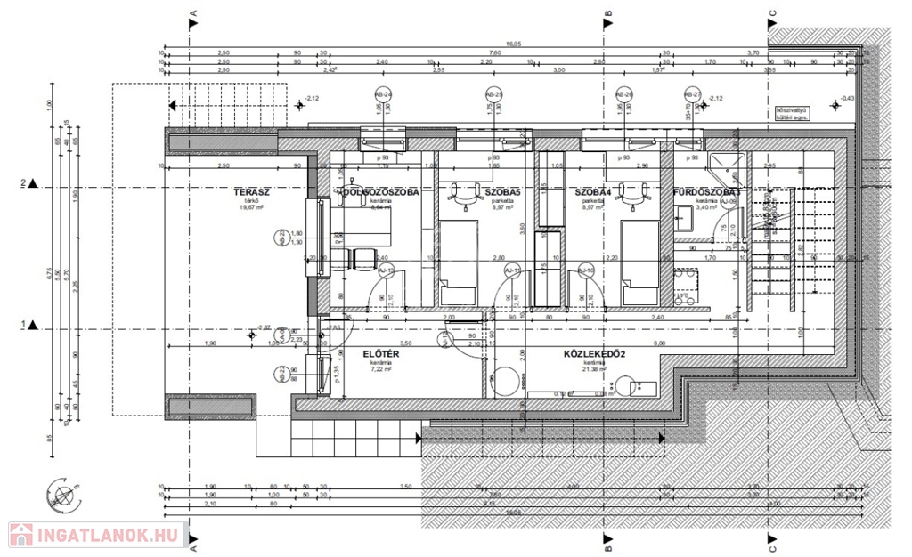
Az ár tartalmazza az elkészült építési terveket is.

A telek két úton is megközelíthető! Közművek az utcában a telek előtt.

Ez a telek nem csupán egy üres földterület, hanem egy lehetőség, hogy megvalósítsa elképzeléseit, legyen az egy családi ház vagy egy modern ingatlan, amely a jövő trendjeit követi.
A telek elhelyezkedése kiemelkedő, hiszen a környék ellátottsága kiváló, így minden szükséges szolgáltatás, mint boltok, iskola, óvoda, orvosi rendelő, gyógyszertár, piac a közelben találhatóak.

A kitűnő közlekedés révén Vác belvárosa, valamint a közeli települések is könnyedén megközelíthetők.

A telek tehermentes, így kifizetése esetén azonnal birtokba vehető, és a csendes környezet garantálja, hogy otthona nyugodt, kertvárosi lakás hangulatát tükrözze.

Az ingatlan környezete biztonságos, barátságos szomszédsággal rendelkezik, amely ideális helyszínt biztosít fiatalok számára, akik a város nyüzsgésétől távol, de mégis közel szeretnének élni mindenhez.

További információért forduljon Hozzám bizalommal!
Igény esetén videót küldök a ház látványtervéről.

Amivel segítjük az Ön ingatlanvásárlását:
-ingyenes hitelügyintézés
-jogi háttér
-földhivatali ügyintézés
-energetikai tanúsítvány elkészítése
-biztosítás

Telek/földterület részletei

Ár: 65 000 000 Ft
Méret: 1 025 Négyzetméter
Azonosító: 11609649
Irodai azonosító: 386441
Cím: Deákvár
Telek: 1025 Négyzetméter
Besorolás: Építési telek
Csatorna: Utcában
Gáz: Utcában
Jelleg: belterület
Villany: Utcában
Víz: Utcában

Térkép

Hasonló telek/földterület hirdetések

Eladó telek/földterület

Vác

Vállalkozók, Befektetők FIGYELEM! Eladó Vácon, Törökhegyen lévő, ...

Hasonló telek/földterület hirdetések

Eladó telek/földterület

Vác

Vállalkozók, Befektetők FIGYELEM! Eladó Vácon, Törökhegyen lévő, ...