Eladó üdülő/nyaraló Gárdony 39 990 000 Ft

Leírás

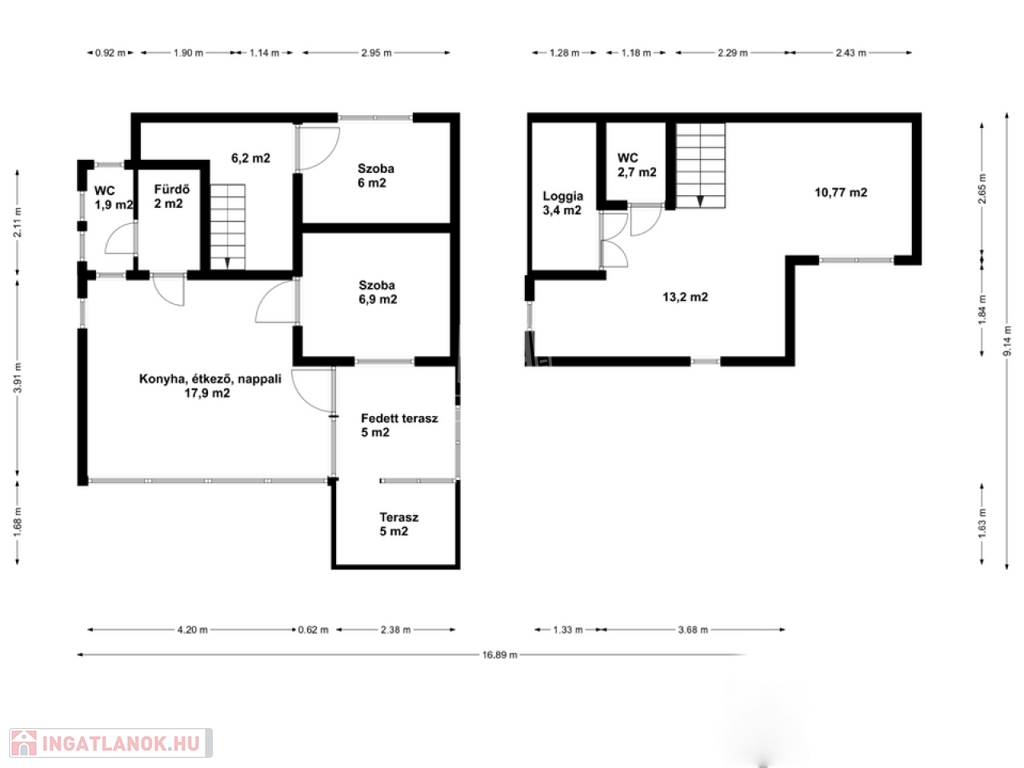
4804. Gárdonyban, 1 km távolságra a tóparttól, csendes kertvárosi utcában, 1975-ben épült favázas könnyűszerkezetes "Éva faház" ikernyaraló, a földszinten tégla bővítményi résszel, gázkonvektor fűtéssel, kis melléképülettel, fedett terasszal, 233 m2-es telekrésszel, közepes-felújítandó állapotban eladó. Részleges felújítások történtek az elmúlt 10 évben: fémlemez héjazat, részleges homlokzati hőszigetelés, külső nyílászárók részleges cseréje. Irányár: 39,99 Mft

Üdülő/nyaraló részletei

Ár: 39 990 000 Ft
Méret: 64 négyzetméter
Azonosító: 11445108
Irodai azonosító: 375728
Cím: Téliesített ikernyaraló
Telek: 233 Négyzetméter
Építőanyag: Könnyűszerkezetes
Jelleg: nyaraló
Építési év: 21-50 éves
Elhelyezkedés: Udvari
Egész szobák: 2
Fél szobák: 2

Egyéb jellemzők

  • Garázs

Térkép