Eladó üdülő/nyaraló Hajdúszoboszló 53 000 000 Ft

Leírás

Eladó Vendégház Hajdúszoboszlón!

Álmodott már saját vendégházról Hajdúszoboszló közelében? Most valóra válhat!

Megvételre kínálunk egy jelenleg is üzemelő, a Magyar Állam tulajdonában és a Tiszántúli Vízügyi Igazgatóság kezelésében álló, a Keleti Főcsatorna menti G69 számú bérleményen lévő vízparti felépítményt.

Az ingatlan különlegessége egy 2 éves, fa tüzelésű akril belsejű finn dézsa, pezsgőfürdő funkcióval, hidromasszázzsal és fényterápiával, amely a pince előtti részen kapott helyet – tökéletes esti kikapcsolódáshoz.
A teraszon emellett kiállás található egy kültéri mosogatóhoz, így lehetőség van szabadtéri főzőpult vagy akár egy hangulatos bár kialakítására is.
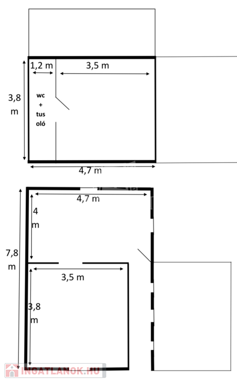
A pince a plafonig hideg burkolattal lett fedve egy majdani wellness részleg kialakítása céljából, ennek első lépcsőjeként egy külön Wc kapott itt helyet.

A kert talaja gondos előkészítésen esett át, ezt követően vakondháló került kihelyezésre a kert tartós védelme érdekében, majd a terület füvesítéssel került befejezésre.

A kertet 4 zónás automata öntözőrendszer látja el vízzel.
A ház minden szintjén vadonatúj Gree hűtő-fűtő klímaberendezés gondoskodik a komfortos hőmérsékletről.

A vendégház jelenleg is üzemel, saját weboldallal és integrált online fizetőrendszerrel rendelkezik, amely lehetővé teszi a teljesen önálló foglaláskezelést új és visszatérő vendégek számára.

Az épület praktikus elrendezésű:

Földszint: tágas, világos nappali és teljesen felszerelt konyha,

Emelet: hálószoba (1 franciaágy + 1 egyszemélyes ágy), fürdőszoba, valamint az előtérben egy kihúzható vendégágy,

Pince: különálló WC,

A vendégház egyidejűleg 6 fő kényelmes elszállásolására alkalmas, így ideális családok, baráti társaságok vagy párok számára.

A vízparti elhelyezkedés lehetővé teszi a horgászatot, csónakázást vagy egyszerűen csak a természet közelségében való kikapcsolódást. Ugyanakkor a közeli Hajdúszoboszló nyüzsgő központja éttermekkel, bárokkal és a híres gyógyfürdővel is gyorsan elérhető.

Az ingatlanhoz tartozik egy, két földnyelv által közrezárt öböl, amelynek szélessége megegyezik az ingatlan utcafronti szélességével és közvetlenül a házzal szemben, az út túloldalán helyezkedik el.

A felépítmény nettó 69 m2 alapterületű vendégház.
A terület bérleti díja 30.000.-Ft/év.

Az ingatlan Hajdúszoboszló külterületén, csendes, nyugodt környezetben található, igényesen berendezett, teljes mértékben felszerelt, így azonnal folytatható benne a vendéglátó tevékenység – ideális befektetőknek, vagy akár saját pihenésre vágyóknak is.

Főbb jellemzők:

-jó állapotú, rendszeresen karbantartott épület,
-teljesen berendezett, modern és hangulatos belső tér,
-több vendég elszállásolására is alkalmas elrendezés,
-parkosított udvar,

Dézsafürdő az udvarban, amely külön élményt nyújt a vendégeknek.

Elhelyezkedés:

Hajdúszoboszló központjától autóval mindössze pár perc.
Könnyen megközelíthető, mégis nyugodt, természetközeli környezet.

Ez a vendégház kiváló lehetőség vállalkozásindításra vagy bővítésre, de akár nyaralóként is tökéletes választás lehet. Ne hagyja ki ezt a páratlan lehetőséget!

Amivel segítjük az Ön ingatlanvásárlását:
- ingyenes hitelügyintézés,
- jogi háttér,
- földhivatali ügyintézés,
- energetikai tanúsítvány,
- a vevő számára az ingatlanközvetítés ingyenes.
Irodánk 30 éves szakmai tapasztalattal áll ügyfelei rendelkezésére!

Várom szíves megkeresését!

Üdülő/nyaraló részletei

Ár: 53 000 000 Ft
Méret: 69 négyzetméter
Azonosító: 11548410
Irodai azonosító: 383682
Cím: Keleti Főcsatorna
Telek: 600 Négyzetméter
Építőanyag: Tégla
Jelleg: nyaraló
Építési év: 21-50 éves
Elhelyezkedés: Udvari
Egész szobák: 2

Egyéb jellemzők

  • Garázs

Térkép

Hasonló üdülő/nyaraló hirdetések

Eladó üdülő/nyaraló

Hajdúszoboszló, Bánomkert

Eladásra kínálunk Hajdúszoboszlón az Aqua parktól 150 méterre egy 2 ...

Eladó üdülő/nyaraló

Hajdúszoboszló

Fedezze fel ezt a csodálatos üdülőt Hajdúszoboszló ...

Hasonló üdülő/nyaraló hirdetések

Eladó üdülő/nyaraló

Hajdúszoboszló, Bánomkert

Eladásra kínálunk Hajdúszoboszlón az Aqua parktól 150 méterre egy 2 ...

Eladó üdülő/nyaraló

Hajdúszoboszló

Fedezze fel ezt a csodálatos üdülőt Hajdúszoboszló ...