Eladó üdülő/nyaraló Isaszeg 34 900 000 Ft

Leírás

CSAK NÁLUNK!

OLCSÓ LAKHATÁS!

Isaszeg Öreghegy részén, eladó egy nettó 31,22 m² lakóterületű 1+1 szobás bruttó 40,72 m² ÁLLANDÓ LAKHATÁSRA alkalmas épület.

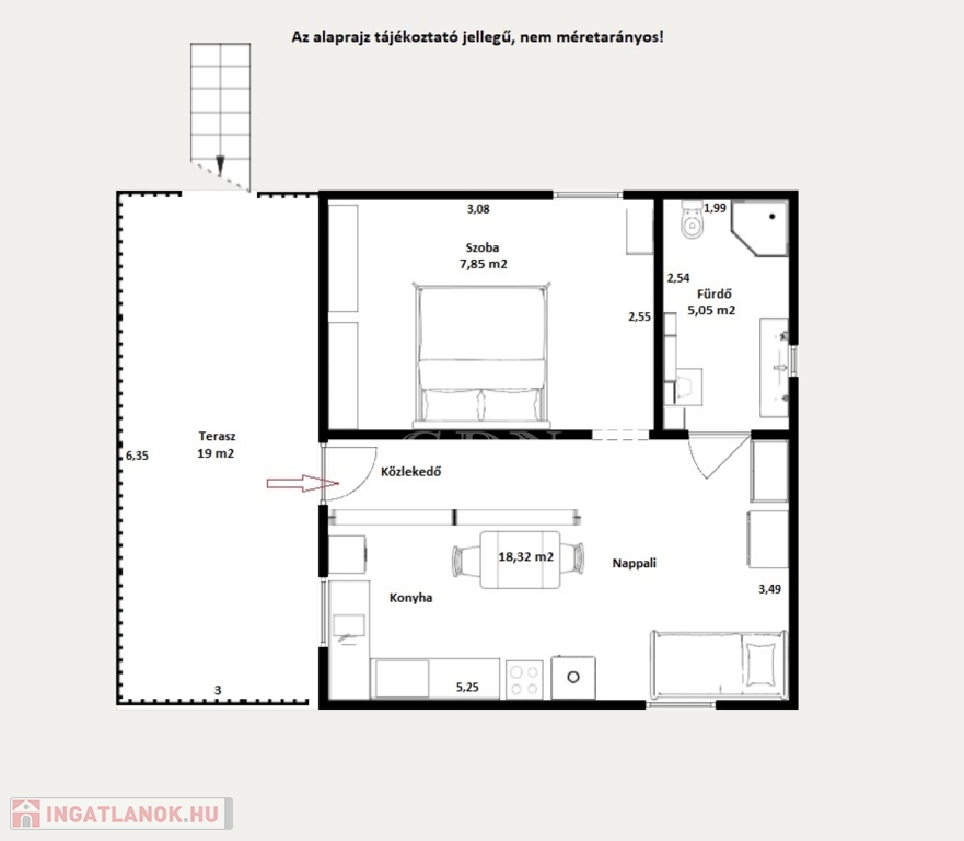
A lakáshoz tartozik egy 19 négyzetméteres terasz, ahonnan gyönyörű kilátás nyílik a környező kertre.

A bruttó méret a terasz 50%-át tartalmazza.

Az ingatlan könnyen megközelíthető, Isaszeg felől az aszfaltos úttól 1,5 km és 5 perc a menetidővel.

A lakó szint alatt, teljes egészében szuterén szint (garázs) húzódik, ami 28,74 m².

A tulajdoni lap szerint, Zártkert „Kivett egyéb épület és udvar „.


A telek 1011 m², melyen vezetékes víz és áram van. 1 x 20A áll rendelkezésre. Utcafront szélessége 20 m.


A házikó, amely 2001-ben épült, falazata 30-as szilikát falazóelem. A födém a szuterén szint felett beton gerenda, a lakószint felett, fa födém.

Az épület tetejét, hullámpala fedi.

Fekvésénél fogva körbe napozott.

A fűtést fa tüzelésű kandalló adja, így a téli időszakban is kellemes meleg várja a lakókat.
A külső kémény szerelt kivitelű.

A melegvizet villanybojlerből nyerjük. A szennyvíz, zárt emésztőbe folyik.

A víz és villanyvezetékek rézből vannak.


Helységlista:

- 18,32 m² konyha- étkező-nappali,
- 7,85 m² hálószoba,
- 5,05 m² zuhanyzós WC-s fürdőszoba,
- 28,74 m² szuterén,
- 19,05 m² terasz,
- 18,00 m² terasz alatti tároló.


A nyugodt környezet ideális helyszín a pihenéshez és kikapcsolódáshoz, akár állatok tartásához!

A körbe kerített kert fákkal bokrokkal van tele ültetve, így az árnyék és az intimitás adott. Ha a kertben igény lenne tereprendezésre, abban is partnerek a Tulajdonosok.

A telek 2 utcára néz, így a használata akár több lehetőséget takar.

Az épület felőli rész privát élettér, a hátsó telek akár állattartásra is alkalmas. Így remekül ki lehet használni a terep adta lehetőségeket.


Ne hagyja ki ezt a remek kínálatot ha egy hangulatos, kertre néző házikóra vágyik Isaszegen!

Az ingatlan PER - TEHER - IGÉNY MENTES!


JÖJJÖN el, NÉZZE meg, SZERESSEN bele!


A GDN HitelCentrum, KÖTELEZETTSÉG MENTESEN és DÍJMENTESEN, versenyezteti Önért a bankok hitelajánlatait. Ismerje meg a vissza nem térítendő állami támogatásokat!

* Egyedi, bankfiókban nem elérhető kamat- és díjkedvezmények.
* Ingyenes Hitelképesség vizsgálat.
* Idő, energia és pénz megtakarítás.
* Teljes hivatali ügyintézés.
* Babaváró.
* CSOK+
* Hitel.
* Megtakarítás,
* és EGYÉB BANKI tranzakcióban segítségére lehetünk!

• Igény esetén, ÜGYVÉDI segítséget nyújtunk, MEGFIZETHETŐ áron!


Ha az ingatlannal kapcsolatban bővebb felvilágosításra lenne szüksége, hívjon bizalommal, állok rendelkezésére!

Videó link: https://youtu.be/0-uXuFowyA4

#nemfix3%

F.M.

Üdülő/nyaraló részletei

Ár: 34 900 000 Ft
Méret: 40 négyzetméter
Azonosító: 11609751
Irodai azonosító: 385274
Cím: Isaszeg-Öreghegy -Lakó ingatlan
Telek: 1011 Négyzetméter
Építőanyag: Szilikát
Jelleg: nyaraló
Építési év: 21-50 éves
Elhelyezkedés: Udvari
Egész szobák: 1
Fél szobák: 1

Egyéb jellemzők

  • Garázs
  • Zárt kert

Térkép