Eladó üdülő/nyaraló Sukoró 68 000 000 Ft

Leírás

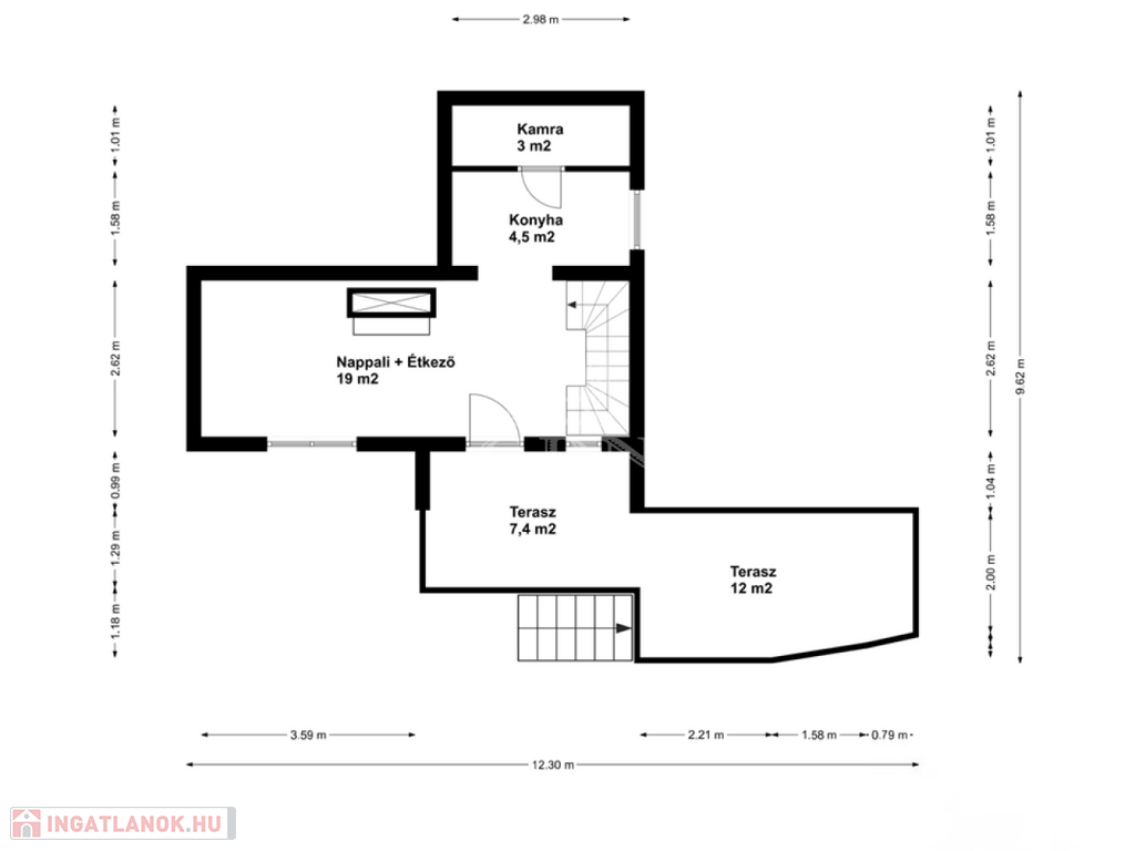
4831. Sukorón, erdő közeli csendes zsákutcában található, Velencei-tóra panorámás, 1603 m2-es telken 1975-ben épült, stabil tégla és vasbeton szerkezetű, új cseréptetős, rendszeresen karbantartott, jó állapotú, 2 db cserépkályhával fűthető, hőszigetelt fa szerkezetű nyílászárókkal rendelkező, kétszintes, nettó 67 m2 alapterületű, nappali + 2 hálószobás nyaraló, garázs és tároló melléképülettel eladó. Ár: 68 Mft

Üdülő/nyaraló részletei

Ár: 68 000 000 Ft
Méret: 78 négyzetméter
Azonosító: 11518423
Irodai azonosító: 381405
Cím: Erdő melletti panorámás
Telek: 1603 Négyzetméter
Építőanyag: Tégla
Jelleg: nyaraló
Építési év: 21-50 éves
Elhelyezkedés: Panorámás
Egész szobák: 3

Egyéb jellemzők

  • Garázs

Térkép