Eladó üdülő/nyaraló Tihany 199 900 000 Ft

Leírás

TIHANYBAN ÚJ ÉPÍTÉSŰ IKERHÁZFÉL - NYARALÓ ELADÓ

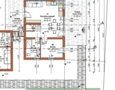
Tihany Gödrös település részén kínáljuk eladásra ezt az új építésű, 104 m2 alapterületű, belső két szintes ikerházat, 250 m2-es saját használatú kertrésszel és autóbeállóval, amely a 100 m2-es közös területen kerül kialakításra.

A 720 m2-es teljes telek területen két, egymástól jól elkülönített ház áll, amelynek nincs közös fala, a két épületet egy kis tárolóhelyiség köti össze. A két épület 6,00 x 8,96 m befoglaló alapterületű, egymástól tartószerkezetileg független, földszintes+ tetőteres, magas tetős, kétegységes üdülőépület, amely két család számára megfelelő térkapcsolatokkal rendelkezik.

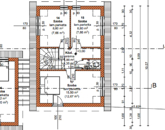
Helyiségei: a földszinten amerikai konyhás nappali, melyhez egy 21 m2-es és egy 12 m2-es terasz kapcsolódik, egy hálószoba, egy zuhanyzós fürdőszoba + WC, az emeleten pedig 1+2 hálószoba, háztartási helyiség és egy WC található.

Az emeleti ablakból a Balaton víztükre is megcsillan a távolban.

A jelenlegi készültség lehetővé teszi új tulajdonosa számára, hogy rövid időn belül használatba tudja venni az ingatlant.

Műszaki tartalom:
- fűtése: elektromos padlófűtés, a melegvíz ellátást elektromos bojler biztosítja
- falazat: Porotherm Klíma 30 cm vtg. égetett kerámia N+F téglafalazat (monolit vasbeton lemezfödém)
- tetőszerkezet: 42 fokos fa szerkezetű nyeregtető, Creaton Domino kerámia tetőcserép fedéssel
-nyílászárók: műanyag szerkezetű, fa erezetes, barna színű homlokzati nyílászárók kerülnek beépítésre, 3 rétegű hőszigetelő üvegezéssel
- klíma kiállások és a napelem előkészítése az új tulajdonos rendelkezésére áll

Elhelyezkedése: a gödrösi szabadstrand 1 km-re, rövid sétával elérhető, buszmegálló 1,3 km, faluközpont, Apátság 1,8 km távolságra.

Az ingatlan adásvételekor budapesti lakás beszámítása lehetséges.

Tihany Magyarország egyik legszebb fekvésű települése, látványos táji és természeti adottságokban bővelkedő község a Balatonba nyúló Tihanyi-félszigeten. Nemcsak a táj szépsége, de a falu varázslatos hangulata és történelmi emlékei is vonzóvá teszik Tihanyt a turisták számára.

Építész- és ingatlanközvetítő irodánk minden hiteles szakmai segítséget meg tud adni, mellyel segíteni tudjuk döntését.
Kérje az ingatlan részletes tájékoztató anyagát!
Kövesse Balatoniingatlanguru facebook és balatoni_ingatlanguru instagram oldalunkat.

Balatoni ingatlanguru – több mint közvetítő




Üdülő/nyaraló részletei

Ár: 199 900 000 Ft
Méret: 104 négyzetméter
Azonosító: 11571500
Telek: 260 Négyzetméter
Építőanyag: Kérdezzen rá a hirdetőtől »
Jelleg: nyaraló
Egész szobák: 2
Fél szobák: 3

Egyéb jellemzők

  • Garázs
  • Kábel TV