Eladó vendéglátó egység Budapest VI. ker 249 000 000 Ft

Leírás

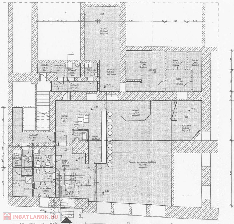
Oktogon közelében a vigalmi negyedben, 247 nm-es, felújított szuterén pub eladó-bérlővel együtt is

A helyiség utcai és lépcsőházból nyíló személyzeti bejárattal és széles utcafronti ablakokkal is rendelkezik. Egy nagyterem, két kisterem, kisebb konyha, előkészítő helyiségek, mosdók kerültek kialakításra. Konyhai elszívó nincs, de kialakítható.
A helyiséget jelenleg bérlő üzemelteti, a megtekintéshez előzetes időpont egyeztetés szükséges! Ár: 249 M Ft.

Vendéglátó egység részletei

Ár: 249 000 000 Ft
Méret: 247 négyzetméter
Azonosító: 10999065
Irodai azonosító: 7360
Cím: Oktogon közelében
Ingatlan állapota: Felújított
Elhelyezkedés: Utcafronti
Szintek: Földszintes
Helyiségek: 1