Eladó vendéglátó egység Komárom 39 000 000 Ft

Leírás

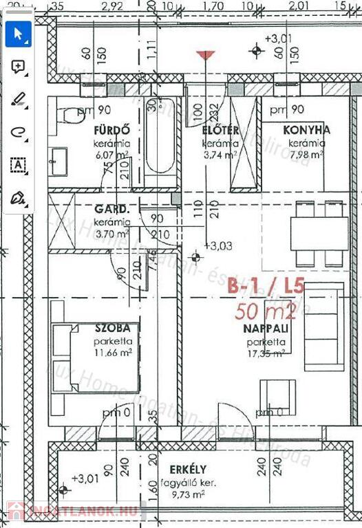
ELADÓ ÜZLETHELYISÉGEK ÚJ ÉPÍTÉSŰ LAKÓPARKBAN KOMÁROMBAN

A lakópark a közúti forgalom elől elzárt hatalmas zöld területen helyezkedik el ennek köszönhetően élhető környezetet biztosít az ott lakóknak!

Komáromban a Mártírok útján újonnan kialakított lakóparkban ÜZLETHELYISÉGEK bevezető áron leköthetőek.

A Gyermek Város Lakóparkban "A" "B" "C" épület típusok helyezkednek el. 


Amennyiben a Lux Ingatlaniroda által kínált hirdetés felkeltette az érdeklődésed, keress bizalommal! Kollégáim díjmentes és bankfüggetlen hitelügyintézéssel állnak rendelkezésedre.

Lux Ingatlan - Számolj velünk

Vendéglátó egység részletei

Ár: 39 000 000 Ft
Méret: 52 négyzetméter
Azonosító: 11596441
Irodai azonosító: 182501141
Ingatlan állapota: Újszerű
Helyiségek: 1