Eladó vendéglátó egység Pannonhalma 420 000 000 Ft

Leírás

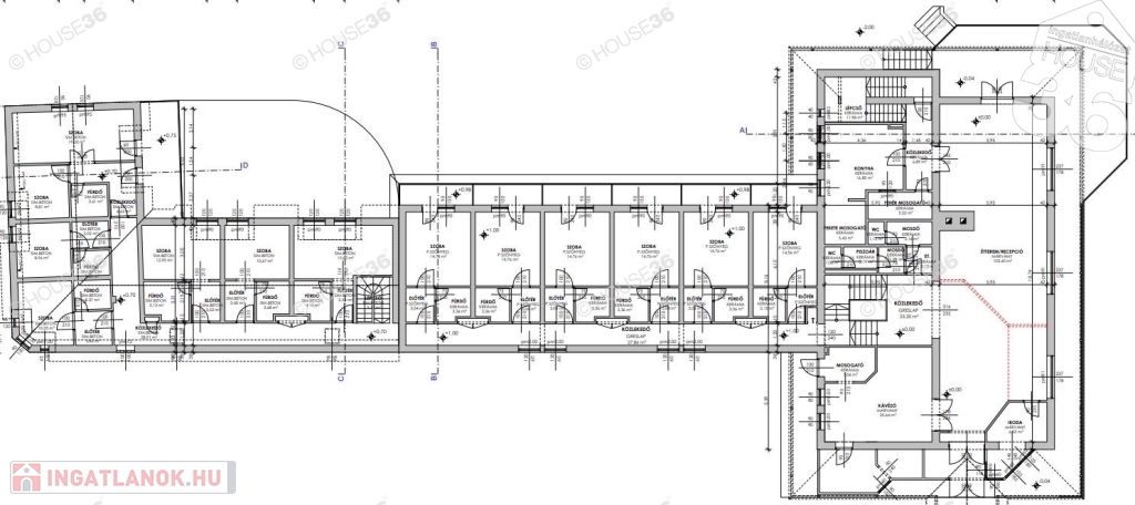
A Győr mellett fekvő Pannonhalma belvárosában, impozáns környezetben eladó egy 5.075 m2-es telken fekvő 1670 m2 hasznos beépített területtel rendelkező többszintes szálloda.

A kiemelkedően nagy zöldfelülettel rendelkező, jó parkolás lehetőséggel ellátott szállodakomplexum összesen 37 lakóegységből áll. A befejezésre és/vagy felújításra váró épületek átlagosan 40%-os készültségi szinten vannak.

2005-ben az egyik épületszárnyban kialakításra került 7 egyszobás apartman, 2 nagy méretű konferencia terem, valamint egy rusztikus stílusú 70 m2-es közösségi tér a pincében. Ennek az épületrésznek a készültségi szintje 80%-os.

Szakmai befektetőt keresünk a szállodakomplexum befejezésére és üzemeltetésére.

Figyelem! Az adatlap megbízónktól kapott adatok alapján készült, pontosságáért felelősséget nem tudunk vállalni!
A tulajdonos kérésére az ingatlan bemutatása egy személyes konzultáció után történik, ahol részletes tájékoztatást kaphat az ingatlan paramétereiről és egyéb kényelmi szolgáltatásairól.
A HOUSE36 kínálatában található összes ingatlannal kapcsolatban tudok felvilágosítást nyújtani!
Hívjon bizalommal! Szolgáltatásaink kereső ügyfeleink számára ingyenesek!
Az ingatlan kizárólag értékesítő által tekinthető meg!
A négyzetméter adatok tájékoztató
Az iroda legfrissebb, aktuális kínálatát a HOUSE36 saját weboldalán találja!

Vendéglátó egység részletei

Ár: 420 000 000 Ft
Méret: 1 670 négyzetméter
Azonosító: 11592430
Irodai azonosító: 3620918-5122637
Ingatlan állapota: Felújítandó
Helyiségek: 1

Térkép