Kiadó ipari ingatlan Budapest XXI. ker 194 900 Ft

Leírás

Tisztelt érdeklődő.
December 22 és január 3 között, kizárólag emailben leszek elérhető, ha visszahívást szeretne, kérem küldje el emailben.

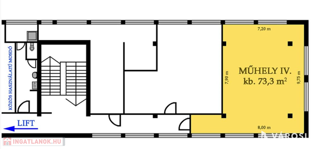
KIADÓ VILÁGOS MŰHELY / IRODA / RAKTÁR BUDAPESTEN
73,3 m²-es, III. emeleti helyiség, amely ideális választás:
- műhely céljára
- irodának
- webshop üzemeltetéséhez, csomagkezeléshez
- raktározás céljára

Előnyök, amit biztosítunk:
- 0-24 órás, önálló bejutás – bármikor dolgozhat vagy beugorhat
- Könnyen megközelíthető, frekventált iparterületen
- Távfelügyeletre kötött, telefonról vezérelhető riasztórendszer
- Közös területeken és környéken kamerás megfigyelés a nagyobb biztonságért
- Energiatakarékos fűtés/légkondicionálás hőlégbefúvással, alacsony rezsi
- Strapabíró kőburkolat, ami bírja a terhelést
- Ötpólusú ipari dugalj, így nagyobb teljesítményű gépekhez is ideális
- Természetes fénnyel megvilágított, világos tér
- Teherlift és lépcső egyaránt rendelkezésre áll
- Akadálymentesített környezet

Költségek:
Bérleti díj: 194.900 Ft/hó, 3 havi kaucióval (az ár az Áfát tartalmazza)
Villany: saját mérőóra alapján, fogyasztás szerint (a fűtést is ez tartalmazza)
Üzemeltetési díj: kb.22 000 Ft/hó, amely tartalmazza a közös mosdó, lift, kamerarendszer és távfelügyelet költségeit (az ár az Áfát is tartalmazza)

Egyéb tudnivalók:
A bérlemény egy négyszintes irodaépület III. emeletén található, teherlifttel és kényelmes lépcsőfeljáróval.
A minimális szerződési idő 1 év.

Várom hívását. Ingatlannal és hitelügyekkel kapcsolatos kérdésekben bármikor, hangsúlyozom, bármikor hívhat.
De tényleg :-)

BRIGHT WORKSHOP / OFFICE / STORAGE FOR RENT IN BUDAPEST
73.3 m² unit on the 3rd floor, which is an ideal choice for:

workshop purposes

office

running a webshop, handling packages

storage purposes

Advantages we provide:

24/7 independent access – you can work or drop by anytime

Easily accessible, in a frequented industrial area

Alarm system connected to remote monitoring, controllable from your phone

Camera surveillance on common areas and around the building for increased security

Energy-efficient heating/air conditioning with hot air blower, low utility costs

Durable stone flooring that withstands heavy use

Five-pole industrial socket, ideal for high-performance machinery

Naturally lit, bright space

Freight elevator and stairs both available

Barrier-free environment

Costs:
Rent: 194,900 HUF/month, with 3 months deposit (price includes VAT)
Electricity: based on own meter, according to consumption (also covers heating)
Operating fee: approx. 22,000 HUF/month, which includes the cost of the shared restroom, elevator, camera system and remote monitoring (price also includes VAT)

Other information:
The rental unit is located on the 3rd floor of a four-storey office building, easily accessible by freight elevator and convenient staircase.
Minimum contract period is 1 year.

I look forward to your call.
For any questions regarding property or financing matters, you can call me anytime — I emphasize, anytime.
Really :-)
(További képekért és információkért kérem hívjon!)

Ipari ingatlan részletei

Ár: 194 900 Ft/hónap
Méret: 73 négyzetméter
Azonosító: 11548124
Irodai azonosító: 044563
Ingatlan állapota: Átlagos
Jelleg: műhely