Kiadó ipari ingatlan Nagykanizsa 1 200 Ft

Leírás

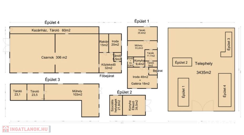
Nagykanizsa Déli városrészében, Ipari Övezetben vált kiadóvá, ez a közel 3500m2-es Ipari ingatlan.
Az udvarban 4 fő épület található, melyek mind külön bejárattal rendelkeznek. (Összterületük megközelítőleg 800m2.)
A telek hátsó szegmensében kisebb tárolók és fedett helységek is megtalálhatók.
A hirdetésben szereplő alaprajzon található épületek külön-külön is bérbe vehetők.
Minden épült saját közművel rendelkezik.
Bérleti díj: 1200 Ft /m2 + Áfa
Ha Ön szeretne kisebb vagy nagyobb épületet akár tárolási, akár üzleti célra bérelni, akkor ez az ingatlan kiváló választás lehet.
(További képekért és információkért kérem hívjon!)

Ipari ingatlan részletei

Ár: 1 200 Ft/hónap
Méret: 800 négyzetméter
Azonosító: 11614040
Irodai azonosító: 068073
Telek: 3435 Négyzetméter
Ingatlan állapota: Átlagos
Jelleg: egyéb