Kiadó ipari ingatlan Szolnok 4 400 Euro

Leírás

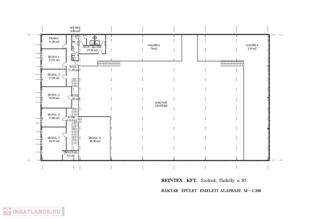
Kiadó kb 1000 nm-es raktárépület és hozzá tartozó emeleti kb 500 nm-es irodaépület irodákkal, bemutatóteremmel, szociális helyiségekkel, öltözőkkel. Belvároshoz közel, ipari területen az M4 autóúttól néhány kilométerre. Ideális raktározásra, logisztikai központnak, kereskedelmi lerakatnak.
Teherautókkal, kamionokkal is jól megközelíthető.

Ipari ingatlan részletei

Ár: 4 400 Euro/hónap+ÁFA
Méret: 1 500 négyzetméter
Azonosító: 11600264
Cím: Thököly út 85
Ingatlan állapota:
Jelleg: műhely
Tulajdonviszony: Tulajdonjog

Egyéb jellemzők

  • Berendezés
  • Csatorna
  • Gáz
  • Ipari áram
  • Villany
  • Víz

Térkép