Kiadó ipari ingatlan Szolnok 1 663 772 Ft

Leírás

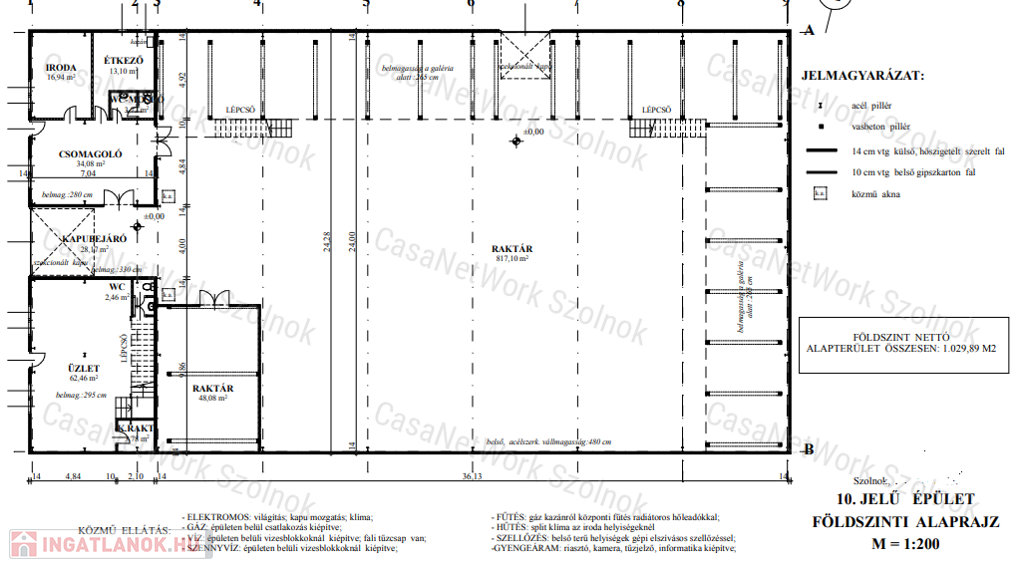
A Szolnoki CasaNetWork ingatlaniroda bérlésre kínál egy 1501 m2-es csarnok raktárt!

Az ingatlan főbb jellemzői:

- Szolnok Északi részén helyezkedik el, az M4-es autóút felhajtójától 1900 méterre

-2000 m2-en található, kerítéssel teljesen körbehatárolt

- a közművek közül víz, villany, vezetékes gáz és csatorna is bevezetésre került

-az épület két ütemben épült, első ütemben a hátsó raktár rész, majd 2. ütemben
épült a raktár elé a kétszintes irodai rész

- funkció: a földszinten kiszolgáló helyiségek és raktár, az emeleten irodák és
galériás kialakítással raktár. A vertikális közlekedést lépcsők biztosítják.
Felmenő szerkezet acél vázszerkezet

-a falazat szerelt jellegű, hőszigetelt
burkolattal 

- tetőfedés szerelt jellegű, hőszigeteléssel

- nyílászáró szerkezetek: a kapuk lamellás, felfelé gördülő kivitelű elektromos
működtetéssel

- gépészet: az épület irodai része fűthető gázkazánnal, a raktár fűtetlen

- elektromos: a világítás, a klíma és a kapu mozgatás 

- víz-csatorna: a vizesblokkokhoz kiépítve; fali tűzcsap van 

- szellőzés: a belső terű helyiségeknél kapcsolóról indított szellőzés

 - gyengeáram: informatika, riasztó, kamera, tűzjelző

 - a földszinten két gépészeti/közmű akna található; a 4. jelű épületből két védőcső
került lefektetésre a közmű aknáig

- a rakodási terület térkővel burkolt, ipari minőségben

- a bérleti idő minimum 12 hó, amennyiben hamarabb kerül felmondásra a kaució összege nem jár vissza, két havi kaució szükséges a bérléshez


 Amennyiben a fenti 155806709  -es azonosító számú kiadó ipari ingatlan, vagy bármely kínálatunkban található ingatlan felkeltette érdeklődését, kérem hívjon bizalommal!

/A hirdetésben szereplő információk a megbízótól kapott adatok alapján készültek./

Irodánk teljes körű szolgáltatással áll ügyfelei rendelkezésére: hitelügyintézés, ügyvédi szolgáltatás, ingatlan értékbecslés, energetikai tanúsítvány készítése.

CasaNetWork - Ingatlanban otthon vagyunk!


Ipari ingatlan részletei

Ár: 1 663 772 Ft/hónap
Méret: 1 501 négyzetméter
Azonosító: 11612459
Irodai azonosító: 155806709
Ingatlan állapota: Átlagos
Jelleg: egyéb
Helyiségek: 15

Egyéb jellemzők

  • Csatorna
  • Gáz
  • Villany
  • Víz

Hasonló ipari ingatlan hirdetések

Kiadó ipari ingatlan

Szolnok

A szolnoki CasaNetWork ingatlaniroda bérlésre kínál Szolnokon egy 1196 ...

Kiadó ipari ingatlan

Szolnok

Kiadó kb 1000 nm-es raktárépület és hozzá tartozó emeleti kb 500 nm-es ...

Kiadó ipari ingatlan

Szolnok

A szolnoki CasaNetWork ingatlaniroda bérlésre kínál Szolnokon egy 1196 ...

Kiadó ipari ingatlan

Szolnok

A szolnoki CasaNetWork ingatlaniroda bérlésre kínál Szolnokon egy 1196 ...

Hasonló ipari ingatlan hirdetések

Kiadó ipari ingatlan

Szolnok

A szolnoki CasaNetWork ingatlaniroda bérlésre kínál Szolnokon egy 1196 ...

Kiadó ipari ingatlan

Szolnok

Kiadó kb 1000 nm-es raktárépület és hozzá tartozó emeleti kb 500 nm-es ...

Kiadó ipari ingatlan

Szolnok

A szolnoki CasaNetWork ingatlaniroda bérlésre kínál Szolnokon egy 1196 ...

Kiadó ipari ingatlan

Szolnok

A szolnoki CasaNetWork ingatlaniroda bérlésre kínál Szolnokon egy 1196 ...