Kiadó iroda/üzlethelyiség Budapest VI. ker 15 000 Euro

Leírás

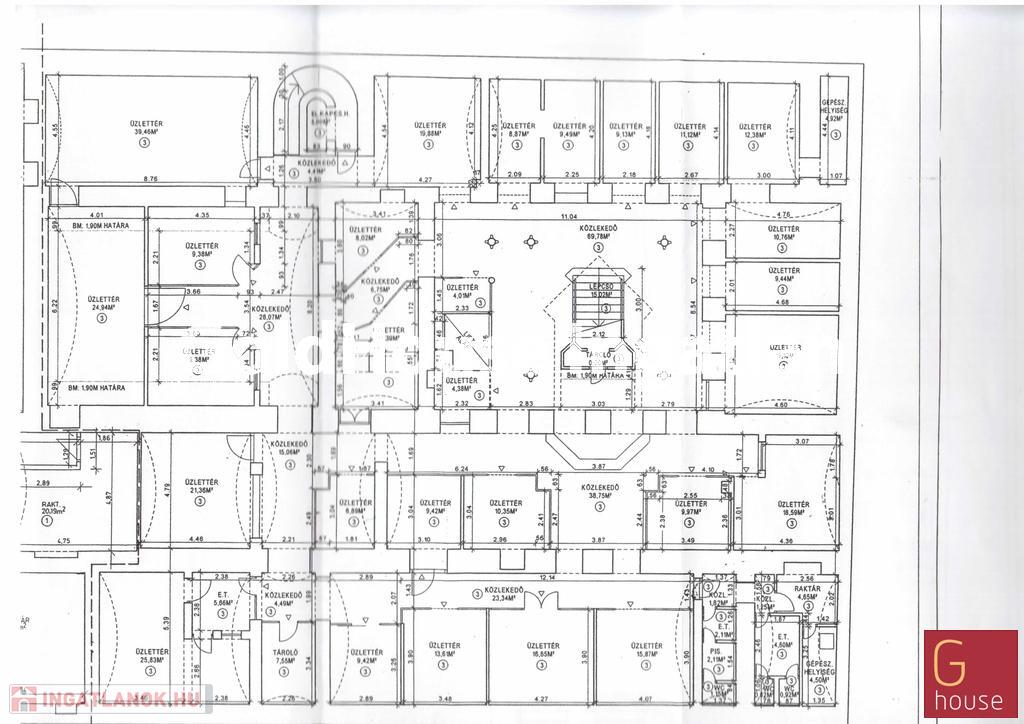
Budapest egyik legforgalmasabb csomópontjánál kiadó, egy nagy portálokkal rendelkező, 994 nm-es, kétszintes üzlethelyiség

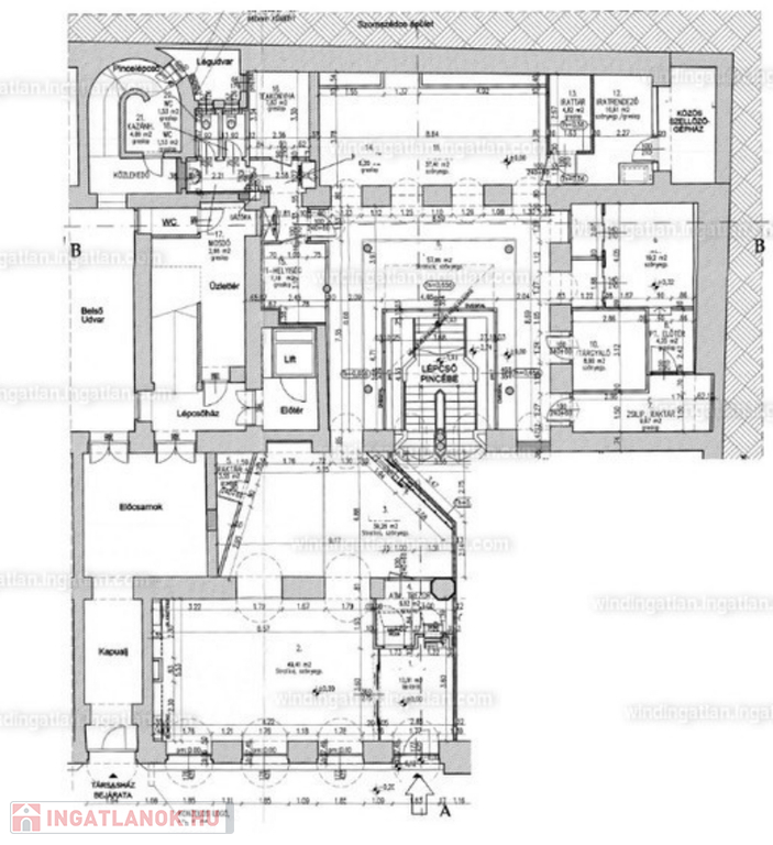
A hely korábban bankfiók volt, így az üzlettéren kívül szerverszoba, teakonyha, mosdók, és több irodahelyiség és betörésbiztos helyiség is van bent. A helyiség felújítandó, igény szerint átalakítható. A tulajdonos rugalmas, a felújítás költsége megbeszélés szerint részben lelakható. Fűtés: cirkó. Ipari áram, légtechnika kialakított.

Kereskedelmi és szolgáltató tevékenységre egyaránt kiváló, kávézó-pékségnek, közértnek, üzletháznak, sport központnak, cégközpontnak, bankfióknak is átalakítható. (Pub, meleg konyha nem lehet)

Földszint: 355 nm. Az üzlettér különlegessége, hogy egy részén üvegtető került kialakításra, mely természetes fényt biztosít a belső térben, ezáltal egyedi és hangulatos belső enteriőr alakítható ki.
Igény esetén 639 nm-es pinceterület is hozzábérelhető, melynek lejárata az üzlettérből közelíthető meg. Amennyiben erre nincs szükség, ez a terület lezárható. A pince is padlólapos, korábban üzlethelyiségek üzemeltek itt is, egybefüggő nagy területek is kialakíthatók.

Tömegközlekedéssel kiválóan megközelíthető, parkolóház is van a közelben. Az üzlet több nagy portállal rendelkezik, tömegközlekedési eszközökről is kiváló a láthatósága.

Bérleti díj földszint: 15.000 EUR+áfa/hó. Pincével együtt: 20.000 EUR+áfa/hó. Kaució: 3 hó.
Az alaprajz tájékoztató jellegű, bővebb infó személyesen.

Iroda/üzlethelyiség részletei

Ár: 15 000 Euro/hónap
Méret: 355 négyzetméter
Azonosító: 11226297
Irodai azonosító: 8093
Cím: Andrássy út-Oktogon vonzásában
Jelleg: Üzlethelyiség
Helyiségek: 1

Egyéb jellemzők

  • Lift