Kiadó iroda/üzlethelyiség Budapest XXII. ker 1 551 Euro

Leírás

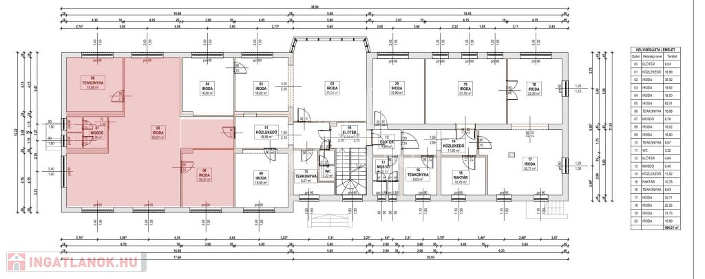
Budafokon igényes Logisztikai Parkban található, felújított irodaházban, egy 140 m² alapterületű irodát kínálunk kiadásra.

Az irodarész saját vizesblokkal illetve teakonyhával rendelkezik, lásd alaprajz.
Kaució: a havi bérleti díj és üzemeltetési költség összegének háromszorosa
Ajánlott bérleti időszak: 3 év
Iroda terület elérhető: 2024. február közepe
Az irodaházban a legkorszerűbb hőszivattyú biztosítja a fűtést és hűtést

Havi bérleti díja : 11,08 EUR + ÁFA /m²
Üzemeltetési költség: 550 HUF + ÁFA / m²/ hó , open book elszámolással.
Közös területi mutató: 6,7%
Parkolás személygépkocsi: havi 25 EUR + ÁFA/db. összegért bérelhető 24 órában őrzött-bekamerázott parkoló
A Parkban kisteherautó parkolók is elérhetőek szükség esetén: 30 EUR + ÁFA / db.
Igény esetén, a 170 parkolóhely mellett további 30+ autó tárolására alkalmas parkoló kialakítható, amely akár külön bejáratról is megközelíthető.

A Logisztikai Park felújítása keretében sok más mellett, a közvilágítás, a biztonsági és az automata beléptető rendszer átfogó modernizálása, a forgalom és parkolás újra szervezése, jelentős parkosítás, valamint szabadtéri “meeting point”-ok kialakítása is megvalósult.
A Park kiemelkedő kamionos megközelíthetőséggel és kitűnő autópálya kapcsolattal rendelkezik, valamint a környék tömegközlekedése is kiváló.

Közelmúltban megvalósult átépítések és felújítások:
•Energiatakarékossági beruházások:
•Munkaterületen a világítótestek LED lámpákra cserélése
•Hőszivattyú telepítése az iroda épülethez
•Park közvilágításának cseréje
•Új szolgáltatások:
•Netházmester üzemeltetési hibabejelentő felület
•A Park bejáratánál egy 6 méteres a bérlőket bemutató, világító totem került elhelyezésre
•Biztonság növelése:
•Kamera rendszer kibővítése, cseréje
•Korszerű, rendszámfelismerő sorompós beléptető rendszer
•Tűzjelző rendszer megújítása
•ESG –„Zöldítés”:
•Intenzív parkosítás
•Pihenőterületek kialakítása
•Szelektív szemétgyűjtés

Tervezett átépítések és felújítások 2023-2024-ban:
•Fenntarthatósági beruházások:
•Elektromos autótöltőállomások kialakítása
•Köz-és díszvilágítás LED lámpákra történő cseréje
•Átépítések:
•A Park bejáratának építészeti megújítása (az itt látható látványtervek szerint)
•Biztonság növelése:
•Integrált portaterület kialakítása
•Központi tűzjelzőberendezés modernizálása
•Új kamera rendszer teljes körű cseréje

További irodák és raktárak is elérhetőek kínálatomban.

Iroda/üzlethelyiség részletei

Ár: 1 551 Euro/hónap
Méret: 140 négyzetméter
Azonosító: 11328287
Irodai azonosító: 330418
Cím: Felújított Iroda Kiadó ( 140 m² )
Jelleg: iroda
Elhelyezkedés: Irodaházban

Egyéb jellemzők

  • Garázs
  • Lift
  • Parkoló

Térkép