Kiadó iroda/üzlethelyiség Győr 1 899 000 Ft

Leírás

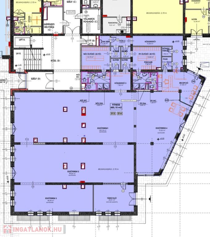
Győr egyik legfrekventáltabb részén, a Győr-Pláza, Praktiker, Aldi stb. szomszédságában, új építésű társasház földszintjén, utcai bejárattal rendelkező, nettó 485m2-es üzlethelyiség kiadó. Az üzlet kialakítását tekintve FITNESS teremnek van előkészítve, de alkalmas lehet bankfióknak, cég központnak, bútorboltnak, bemutatóteremnek stb.
Az átadás tervezett befejezése 2026 január.
Bérleti díj: 10,-Euró+áfa/m2
Kaució mértéke, két havi bérleti díjnak megfelelő összeg.
Érd: 06-70-605-0506

Iroda/üzlethelyiség részletei

Ár: 1 899 000 Ft/hónap+ÁFA
Méret: 485 négyzetméter
Azonosító: 11582286
Irodai azonosító: 123467
Cím: Győr
Jelleg: Üzlethelyiség

Egyéb jellemzők

  • Lift