Kiadó iroda/üzlethelyiség Miskolc 399 000 Ft

Leírás

Ha kiadó irodát vagy üzlethelyiséget keres, itt megtalálja!

Miskolc belvárosában hosszútávra kínálunk kisebb-nagyobb iroda- és üzlethelyiségeket.
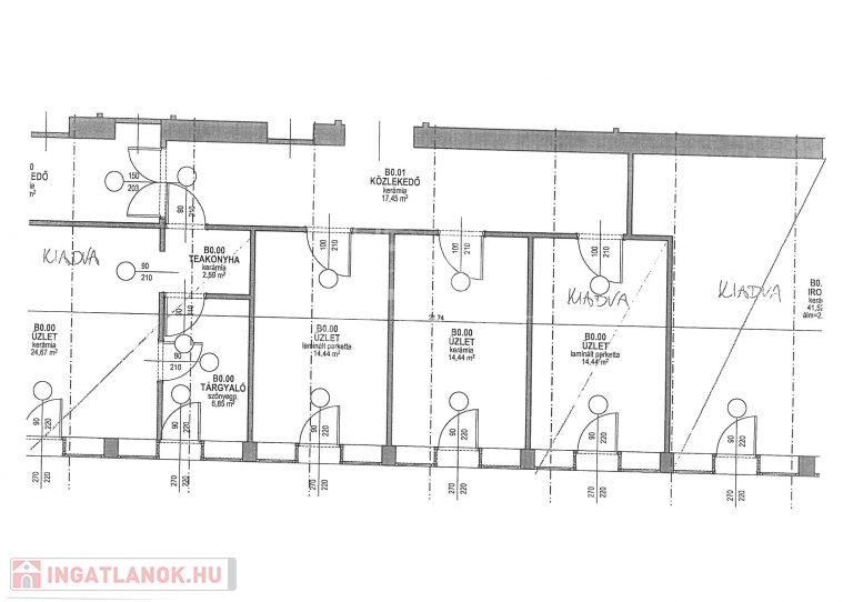
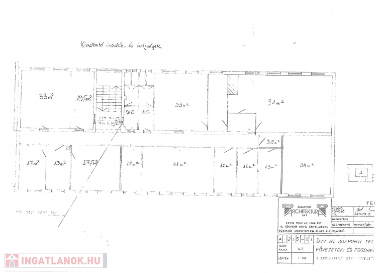
Az épületben elérhetőek utcafrontos, üvegportálos, földszinti irodák, üzletek, valamint emelti irodákat is, különböző mérteben.
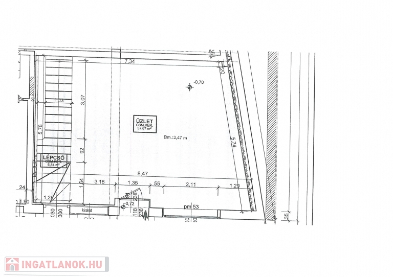
A képeken és a hirdetésben megtalálható földszinti iroda 114 nm. Újszerű esztétikai állapotú.
Az iroda vizesblokkal és felszerelt konyhával rendelkezik.

Havi bérleti díj már 3500 Ft / m2 + Áfa + rezsi -től elérhető.
Három havi kaució szükséges.
Részletekkel és megtekintéssel kapcsoltban kérem keressen.

Ha eladó vagy kiadó ingatlana van és segítségre szorul az ingatlanpiacon, keresse irodánkat.
Hitel, CSOK, értékesítés, értékbecslés és minden, ami ingatlan.

Iroda/üzlethelyiség részletei

Ár: 399 000 Ft/hónap
Méret: 114 négyzetméter
Azonosító: 11339904
Irodai azonosító: 322224
Cím: Zsolcai kapu
Jelleg: iroda
Elhelyezkedés: Irodaházban

Egyéb jellemzők

  • Garázs
  • Lift
  • Parkoló

Térkép

Hasonló iroda/üzlethelyiség hirdetések

Kiadó iroda/üzlethelyiség

Miskolc

Miskolc belvárosában, jól frekventált helyen,123+20m2-es, 1. emeleti, több ...

Hasonló iroda/üzlethelyiség hirdetések

Kiadó iroda/üzlethelyiség

Miskolc

Miskolc belvárosában, jól frekventált helyen,123+20m2-es, 1. emeleti, több ...