Kiadó iroda/üzlethelyiség Székesfehérvár 3 500 Ft

Leírás

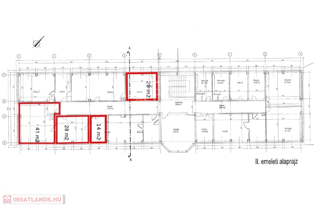
Bip-002464. Déli Ipari Parknál az M7-es autópályához közel „A” kategóriás irodaházban különböző alapterületű irodahelyiségek kiadók!

Elérhető, szabad irodák:
‣ II. emelet: 28m2
‣ II. emelet: 41m2
‣ II. emelet: 28m2
‣ II. emelet: 14m2

Jellemzők:
‣ felújított állapotú épület
‣ portaszolgálat
‣ közöshasználatú konyha, étkező
‣ zömében klimatizált irodák
‣ árnyékolás zsaluziákkal
‣ parkolás az épület környezetében ingyenes
‣ díj ellenében az udvarban saját parkolóhely biztosítható (15.000 Ft +ÁFA/hó)

Bérleti díj: 3500 Ft +ÁFA/m2/hó +rezsi +
kaució: 2 havi bruttó bérleti díjnak megfelelő összeg



Ha felkeltette érdeklődését, hívja irodánkat bizalommal, éljen ingyenes, személyre szabott hitelügyintézés szolgáltatásunkkal. Segítünk továbbá adásvételhez szükséges ügyvédi közreműködésben, energetikai tanúsítvány, valamint értékbecslés elkészítésében.

For English details please send us a message or an e-mail, thank you.

Iroda/üzlethelyiség részletei

Ár: 3 500 Ft/hónap
Méret: 14 négyzetméter
Azonosító: 11431419
Irodai azonosító: 356907
Cím: Déli Ipari Zóna
Jelleg: iroda
Elhelyezkedés: Irodaházban

Egyéb jellemzők

  • Garázs
  • Lift
  • Parkoló

Térkép

Hasonló iroda/üzlethelyiség hirdetések

Kiadó iroda/üzlethelyiség

Székesfehérvár

Bip-000414. Székesfehérváron a Déli Ipari Parknál az M7-es autópályához ...

Hasonló iroda/üzlethelyiség hirdetések

Kiadó iroda/üzlethelyiség

Székesfehérvár

Bip-000414. Székesfehérváron a Déli Ipari Parknál az M7-es autópályához ...