Kiadó iroda/üzlethelyiség Székesfehérvár 454 000 Ft

Leírás

Bip-004675. Gyümölcs utcában, összesen 300m2 alapterületű utcafronti, nagykirakatos üzlethelyiség / iroda, egyeben vagy megosztva kiadó, illetve eladó!

A Horvát István utca és a Gyümölcs utca sarán, zöld környezetben található részben felújított üzlethelyiség irodai és szolgáltatási tevékenységekre egyaránt alkalmas.
A belvároshoz közeli elhelyezkedés könnyű megközelíthetőséget és jó ügyfélforgalmat biztosít, a közelben pedig utcai parkolás könnyen elérhető. Az üzlethelyiség belső kialakítása előzetes egyeztetés alapján rugalmasan alakítható, így könnyen a leendő bérlő igényeire szabható.

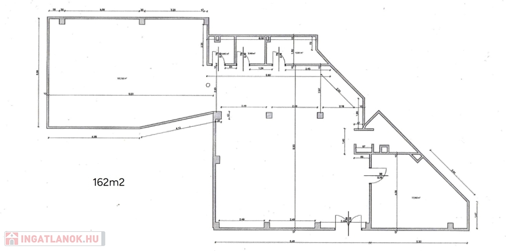
Az üzlethelyiség jelenleg két részre, egy 138m2 és egy 162m2 alapterületű egységre van bontva. Igény esetén összenyitva, egyben vagy megosztva, a jelenlegi állapotában is bérbe vehető.

Mindkét ingatlanrész rendelkezik széles utcafronti kirakattal, saját bejárattal és vizesblokkal, rezsifogyasztás külön mérhető. Fűtése önálló gázkazán radiátoros hőleadással, amely a közelmúltban került felújításra. Új hűtő-fűtő klímák találhatók mindkét üzletben.

Az ingatlan klasszikus irodai tevékenységen túl ideális választás lehet szépségipari szolgáltatások, magánrendelő, bemutatóterem, kisebb fitness- vagy jógastúdió, illetve banki vagy biztosítói tevékenység számára.

Bérleti díj: (nem áfás) +rezsi + 2 hó kaució
138m2 – 366e Ft/hó
162m2 – 454e Ft/hó
300m2 – 820e Ft/hó
Közös költség a teljes terület vonatkozásában 45.000Ft/hó, amely részarányosan kerül leosztásra a két helyiség között.





Ha felkeltette érdeklődését, hívja irodánkat bizalommal, éljen ingyenes, személyre szabott hitelügyintézés szolgáltatásunkkal. Segítünk továbbá adásvételhez szükséges ügyvédi közreműködésben, energetikai tanúsítvány, valamint értékbecslés elkészítésében.

For English details please send us a message or an e-mail, thank you.

Iroda/üzlethelyiség részletei

Ár: 454 000 Ft/hónap
Méret: 162 négyzetméter
Azonosító: 11582310
Irodai azonosító: 390140
Cím: Gyümölcs utca
Jelleg: Üzlethelyiség

Egyéb jellemzők

  • Garázs
  • Parkoló
  • Utcafront

Térkép

Hasonló iroda/üzlethelyiség hirdetések

Kiadó iroda/üzlethelyiség

Székesfehérvár

Bip-001388. Alba Ipari Zónába a Repkény és a Kosbor utca sarkán önálló ...

Kiadó iroda/üzlethelyiség

Székesfehérvár

Bip-002539. Történelmi belvárosban, frekventált helyen, irodaház földszintjén, ...

Kiadó iroda/üzlethelyiség

Székesfehérvár

Bip-004771. Móri úton közvetlenül a főút mellett nagykirakatos, 163m2 ...

Hasonló iroda/üzlethelyiség hirdetések

Kiadó iroda/üzlethelyiség

Székesfehérvár

Bip-001388. Alba Ipari Zónába a Repkény és a Kosbor utca sarkán önálló ...

Kiadó iroda/üzlethelyiség

Székesfehérvár

Bip-002539. Történelmi belvárosban, frekventált helyen, irodaház földszintjén, ...

Kiadó iroda/üzlethelyiség

Székesfehérvár

Bip-004771. Móri úton közvetlenül a főút mellett nagykirakatos, 163m2 ...