Eladó családi ház Budapest II. ker 124 900 000 Ft

Leírás

II. KERÜLETI CSALÁDI HÁZ ELADÓ – PESTHIDEGKÚT-ÓFALU SZÍVÉBEN!

Képzelje el, hogy minden reggel madárcsicsergésre ébred egy csendes, ősfás utcában, ahol a múlt hangulata és a természet közelsége ötvöződik a városi kényelemmel.
Ezen a 437 nm-es, elszeparált telken áll ez a sok lehetőséget kínáló családi ház, amely Önre vár, hogy új életet és új történeteket vigyen bele.

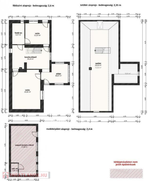
Földszint: hangulatos, két szobás lakótér, amely melegséget áraszt

Tetőtér: beépített, ahol a család új otthonos zugokat alakíthat ki

Különálló kisház (29 nm): ideális műhelynek, vendégháznak vagy kreatív alkotótérnek

Állapot: felújítandó, de hatalmas potenciállal

A ház vegyes szerkezetű, fűtés jelenleg nem megoldott – így teljes mértékben a saját igényeire szabhatja

MIÉRT KÜLÖNLEGES EZ AZ OTTHON?

Saját, elszeparált kert, ahol nyugodtan pihenhet vagy családi összejöveteleket tarthat

Különálló kisház, amely vendégeket, több generációt, vagy akár egy kis vállalkozást is befogadhat

Családias, barátságos környezet, ahol a szomszédok köszönnek egymásnak

A ház karaktere és a környék atmoszférája olyan, mintha egy falusi idillbe csöppenne a főváros szívében

Tiszta tulajdoni lap – azonnal megvásárolható

LOKÁCIÓ, AMELY ÉRTÉKET AD
Pesthidegkút-Ófalu a II. kerület egyik legkedveltebb városrésze.

Pár lépés a történelmi Klebelsberg-kastélytól

Rövid sétára a Hidegkúti úttól, ahol a tömegközlekedés könnyen elérhető

Közeli kirándulóhelyek, erdei ösvények, kulturális programok és nyugodt kisvárosias hangulat

Itt egyszerre élvezheti a nyugalmat és a főváros közelségét!

FINANSZÍROZÁS – KEDVEZMÉNYES LEHETŐSÉGEK
Az OTP Bank kiemelt lakáshitel konstrukciói, egyedi akciói és kamatkedvezményei elérhetők.
Ügyintézés: gyorsan, díjmentesen.

EGY IGAZI SZÍVVEL LÉLEKKEL FELÚJÍTANDÓ OTTHON, AMELY ÖNRE VÁR!
Hívjon bizalommal – akár hétvégén is – és fedezze fel, milyen jövőt álmodhat itt családjának!

124900000 Ft

Referencia szám: M298598

Családi ház részletei

Ár: 124 900 000 Ft
Méret: 106 négyzetméter
Azonosító: 11572964
Irodai azonosító: M298598-5011045
Telek: 437 négyzetméter
Ingatlan állapota: Felújítandó
Jelleg: családi ház
Építőanyag: Tégla
Fűtés jellege: Egyéb
Komfort fokozat: Komfort nélkül
Kor: 50 évesnél régebbi
Szintek száma: 1 szint
Egész szobák: 3

Térkép

Hasonló családi ház hirdetések

Eladó családi ház

Budapest II. ker

Pesthidegkúton örökpanorámás lakások ajándék konyhabútorral eladók! Tájvédelmi ...

Eladó családi ház

Budapest II. ker

Önálló kivitelezési lehetőség! A rugalmas építő rögtönzött akciója ...

Eladó családi ház

Budapest II. ker

***II.kerület, HIDEGKÚTON, a TEMPLOM utcában CSALÁDI HÁZ eladó!*** ***KIZÁRÓLAG ...

Hasonló családi ház hirdetések

Eladó családi ház

Budapest II. ker

Pesthidegkúton örökpanorámás lakások ajándék konyhabútorral eladók! Tájvédelmi ...

Eladó családi ház

Budapest II. ker

Önálló kivitelezési lehetőség! A rugalmas építő rögtönzött akciója ...

Eladó családi ház

Budapest II. ker

***II.kerület, HIDEGKÚTON, a TEMPLOM utcában CSALÁDI HÁZ eladó!*** ***KIZÁRÓLAG ...