Eladó családi ház Budapest X. ker 265 000 000 Ft

Leírás

Nemzetközi lehetőség Budapesten – Prémium villa üzleti és befektetési célra az Óhegy városrészben

Budapesten, a X. kerület zöldövezeti, kertvárosias részén, Óhegyen kínálunk megvételre egy teljes körűen, prémium minőségben felújított, azonnal használatba vehető, két szintes nagypolgári villát.

A 729 m²-es, gondozott saroktelken elhelyezkedő ingatlan nemcsak elegáns otthonként, hanem nemzetközi vállalkozás, cégközpont, képviseleti iroda vagy egészségügyi/szolgáltató központ számára is ideális választás.

Ez az ingatlan tökéletes belépési pont lehet egy Magyarországon vagy az Európai Unióban terjeszkedő külföldi vállalkozás számára.

Kiemelt üzleti előnyök

Két teljesen külön bejárattal rendelkező szint – önálló funkcióra kialakítva

Mozgáskorlátozott lépcsőlift – akadálymentesített működés

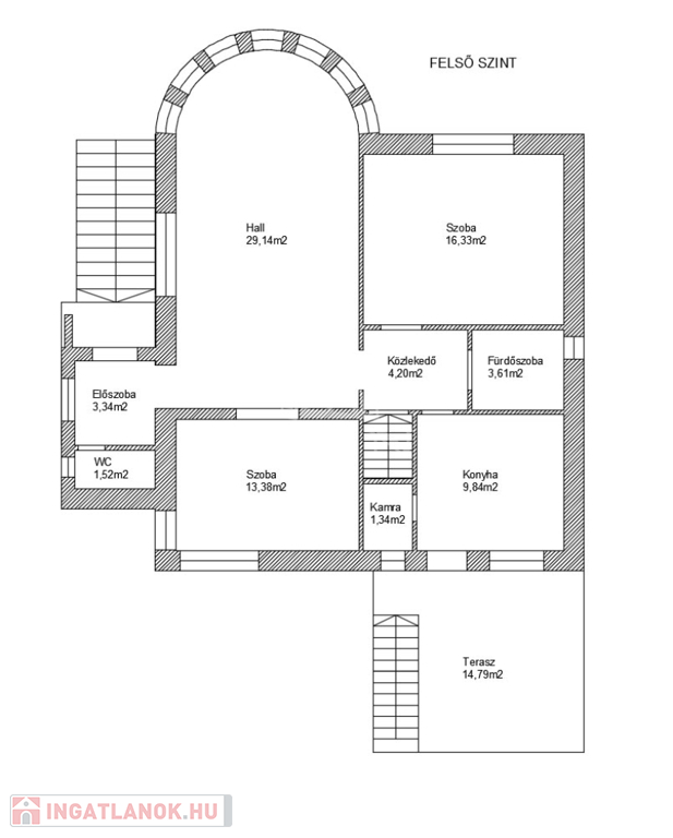
5 szoba, 2 konyha, 2 fürdőszoba, tágas hall és reprezentatív fogadóterek

Modern gépészet, friss prémium felújítás

729 m²-es saroktelek, több gépkocsi beállási lehetőséggel

Motoros kapu, intim hátsó kert, külön tárolóhelyiség

Azonnal birtokba vehető, újszerű állapot

Ideális választás lehet:

✔ Nemzetközi vállalat budapesti központjának
✔ Kínai / ázsiai kereskedelmi képviseletnek
✔ Oktatási vagy kulturális központnak
✔ Magánklinikának, rendelőnek
✔ Prémium szolgáltató vállalkozásnak
✔ Két különálló lakásos befektetésnek
✔ Többgenerációs családi rezidenciának

Inspiráló lehetőség

Az ingatlan ritka kombinációja az eleganciának, a funkcionalitásnak és az üzleti potenciálnak.
Reprezentatív megjelenése bizalmat és stabilitást sugall – ami különösen fontos nemzetközi partnerekkel dolgozó vállalkozások számára.

A csendes, mégis jól megközelíthető környezet ideális egy olyan vállalkozás számára, amely értékeli a nyugodt munkakörnyezetet, ugyanakkor fontos számára a budapesti üzleti kapcsolatok könnyű elérhetősége.

Ez nem csupán egy ingatlan.
Ez egy stratégiai lehetőség egy stabil európai jelenlét kiépítésére.

Ha szeretnéd, készítek hozzá:

professzionális angol nyelvű üzleti verziót

rövidebb, kifejezetten befektetői célú hirdetési változatot

vagy egy kifejezetten kínai célcsoport számára optimalizált, kulturálisan hangolt szöveget is

Családi ház részletei

Ár: 265 000 000 Ft
Méret: 182 négyzetméter
Azonosító: 11580316
Irodai azonosító: 389758
Cím: Mádi utca
Telek: 729 négyzetméter
Ingatlan állapota: Felújított
Jelleg: családi ház
Építőanyag: Tégla
Fűtés jellege: Cirkó
Fűtés módja: Gáz
Komfort fokozat: Összkomfort
Kor: 50 évesnél régebbi
Szintek száma: 1 szint
Egész szobák: 7

Egyéb jellemzők

  • Csatorna
  • Garázs
  • Pince
  • Terasz

Térkép

Hasonló családi ház hirdetések

Eladó családi ház

Budapest X. ker

X. KERÜLET KÖZKEDVELT RÉSZÉN KÍNÁLUNK ELADÁSRA EGY 2 SZINTES 7 SZOBÁS ...

Hasonló családi ház hirdetések

Eladó családi ház

Budapest X. ker

X. KERÜLET KÖZKEDVELT RÉSZÉN KÍNÁLUNK ELADÁSRA EGY 2 SZINTES 7 SZOBÁS ...