Eladó családi ház Budapest XVIII. ker, Ganzkertváros, 124 900 000 Ft

Leírás

**Eladó új építésű ikerházfél Budapest 18. kerületében**

**Helyszín:** Budapest, XVIII. kerület, Ganzkertváros, új parcellázású rész, új házak környezetében, csendes részen.

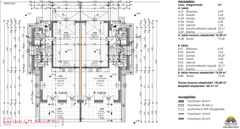
**Ingatlan típusa:** Ikerházfél (ikerfelek az utcafronthoz képest egymás mellett helyezkednek el, nincs egymáson átjárás).

**Méret:**
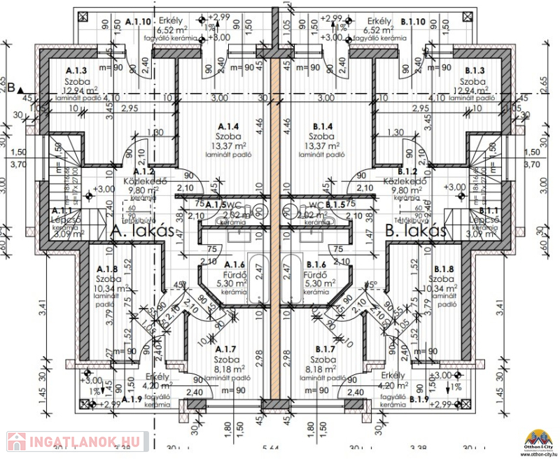
- Lakóterület: 141,5 nm
- Földszinti terasz: 19,2 nm
- Emeleti loggia: 10 nm
- Telek: 375 nm

**Szobák száma:** 5

**Állapot:** Új építésű



**Fűtés:** Elektromos padlófűtés

**Megújuló energiaforrás:** 5 kW-os napelemrendszer

**Melegvíz előállítás:** Elektromos vízmelegítő

**Jellemzők:**
- 10 cm hőszigetelés
- 3 rétegű, 5 légkamrás nyílászárók
- Falak: 30 cm és 10 cm phorotherm
- Duplakomfortos
- Minden szoba terasz vagy erkély kapcsolattal rendelkezik
- Épületen belül közel 30 nm garázs
- A ház minden része világos, élhető méretű terekkel rendelkezik

**Közlekedés:**
- 10-12 perces sétára: 166, 182, 254E, 255E, 266, 282E jelzésű buszok
- KÖKI: 35 perc tömegközlekedéssel
- Boráros tér: 48-50 perc tömegközlekedéssel

**Közeli létesítmények:**
- Spar
- Pékség
- Óvoda
- Iskola
- Bölcsőde
- Játszótér

Ez az új építésű ikerházfél ideális választás azoknak, akik csendes, mégis jól megközelíthető helyen keresnek modern, energiatakarékos otthont. Az ingatlan 10 cm hőszigeteléssel, 3 rétegű, 5 légkamrás nyílászárókkal, és phorotherm falazattal (30 cm és 10 cm) rendelkezik, melyek biztosítják az energiahatékonyságot és a kellemes belső klímát. Az épület dupla komfortos, minden szoba terasz vagy erkély kapcsolattal bír, továbbá egy közel 30 nm-es garázs is helyet kapott benne. Az elektromos padlófűtés és a 5 kW-os napelemrendszer garantálja az alacsony rezsiköltséget, míg a modern elektromos vízmelegítő biztosítja a melegvíz ellátást.

Ne hagyja ki ezt a lehetőséget, hívjon most a megtekintésért

Családi ház részletei

Ár: 124 900 000 Ft
Méret: 142 négyzetméter
Azonosító: 11412720
Városrész: Ganzkertváros
Telek: 375 négyzetméter
Ingatlan állapota: Átlagos
Jelleg: ikerház
Építőanyag: Kérdezzen rá a hirdetőtől »
Szintek száma: 2 szint
Egész szobák: 5

Egyéb jellemzők

  • Csatorna
  • Garázs
  • Kábel TV
  • Melléképület
  • Parketta
  • Pince
  • Terasz

Hasonló családi ház hirdetések

Eladó családi ház

Budapest XVIII. ker

Referens: GI11/100212 Eladásra kínálok egy rendezett kert ölelésében ...

Eladó családi ház

Budapest XVIII. ker

XVIII. kerületben, Pestszentimrén eladó egy 673 m2-es telken lévő, 200 ...

Eladó családi ház

Budapest XVIII. ker

Budapest XVIII. kerületében, Ganz-kertvárosban eladó egy 90 nm-es, nappali ...

Eladó családi ház

Budapest XVIII. ker, Ganzkertváros

18. kerület zöldövezeti, csendes utcájában napelemes, 140 m2-es + 40 m2. ...

Hasonló családi ház hirdetések

Eladó családi ház

Budapest XVIII. ker

Referens: GI11/100212 Eladásra kínálok egy rendezett kert ölelésében ...

Eladó családi ház

Budapest XVIII. ker

XVIII. kerületben, Pestszentimrén eladó egy 673 m2-es telken lévő, 200 ...

Eladó családi ház

Budapest XVIII. ker

Budapest XVIII. kerületében, Ganz-kertvárosban eladó egy 90 nm-es, nappali ...

Eladó családi ház

Budapest XVIII. ker, Ganzkertváros

18. kerület zöldövezeti, csendes utcájában napelemes, 140 m2-es + 40 m2. ...