Eladó családi ház Budapest XVIII. ker 140 990 000 Ft

Leírás

Kizárólag a Fodor Ingatlanközvetítő Kft. portfóliójában!

ELADÓ ÚJ ÉPÍTÉSŰ, 2 SZINTES, KLASSZIKUS IKERHÁZ, XVIII.KERÜLET FERIHEGY RÉSZÉN, 541 NM-ES TELKEN LAKÁSONKÉNT 270M2-ES TELEK RÉSSZEL. AZ ÉPÜLET A SZIGORÚ KÖRNYEZETVÉDELMI ÉS ENERGETIKAI ELVÁRÁSOKNAK MEGFELEL!

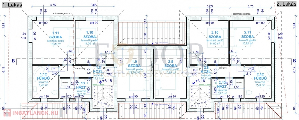
A lakások hasznos lakóterülete 120m2 és 119m2. Amerikai-konyhás nappalin kívül 3 külön bejáratú hálószobával rendelkezik. Nappalija közvetlen kertkapcsolatos, 12 nm-es terasz és 20 nm-es garázs-tároló tartozik a lakásokhoz.

Az építkezés még nem kezdődött el, várható kezdés 2026. májusa, a befejezés 2027. első negyedévében várható. Az ingatlan minden tekintetben meg fog felelni a mai kor elvárásainak. Burkolatok, szaniterek, beltéri ajtók választhatóak. A lakás fűtése és melegvíz ellátása levegő-víz hőszivattyúval készül, amely 210 l-es melegvíz tartályt is tartalmaz. A lakás hűtése 1 db inverteres hűtő-fűtő klímával lesz megoldott.

Lakások ára:
1. Lakás: 140.990.000.- Forint (140m2-es lakás)
2. Lakás: 139.990.000.-Forint (139m2-es lakás)

Műszaki tartalom:
• 30-as főfal, 10 cm-es tégla válaszfalak, 10 cm grafitos homlokzati és 30 cm födémszigetelés.
• Vasbeton sávalap.
• Fehér, műanyag tokos, 3 rétegű, több légkamrás, thermo üvegezésű nyilászárók, elektromos redőny, motorizálásra előkészítve.
• Hőszivattyú, klíma.
• Antracit vagy barna színű cserép, készültségi fok függvényében választható.

Elrendezés:
Földszint:
Előtér, terasz kapcsolatos nappali, étkező-konyha, kamra, zuhanyzós fürdőszoba, garázs és az emeletre vezető lépcső.

Emelet:
Három külön nyíló hálószoba, egy fürdőszoba és egy háztartási helyiség.

Tulajdonságok:
• Privát kerítéssel elválasztott saját telekrész.
• Elektromos kapu előkészítés és hőszigetelt, szekcionált garázs ajtó és motor az árban.
• Teljes riasztó rendszer, kezelő egységgel együtt.

AZ ÁRAK KULCSRAKÉSZ ÁLLAPOTRA VONATKOZNAK!

A környék infrastruktúrája kiváló, minden kiszolgáló egység és tömegközlekedés pár perc sétára megtalálható.

Irodánk teljes körű segítséget nyújt:
•díjmentes hitelügyintézés
•CSOK Plusz tanácsadás
• banki partneri háttér a vásárlás minden lépésében

Az alaprajz és a leírás kizárólag tájékoztató jellegű.

Ne maradjon le erről az igazán különleges lehetőségről – hívjon bizalommal!

Családi ház részletei

Ár: 140 990 000 Ft
Méret: 120 négyzetméter
Azonosító: 11613858
Irodai azonosító: 352414
Telek: 270 négyzetméter
Ingatlan állapota: Kitűnő
Jelleg: ikerház
Építőanyag: Tégla
Komfort fokozat: Összkomfort
Kor: Új építésű
Egész szobák: 4

Egyéb jellemzők

  • Garázs
  • Terasz

Hasonló családi ház hirdetések

Eladó családi ház

Budapest XVIII. ker

Referens: GI11/100212 Eladásra kínálok egy rendezett kert ölelésében ...

Eladó családi ház

Budapest XVIII. ker

ELADÓ ÚJ ÉPÍTÉSŰ 145 m2-es 5 szobás CSALÁDI HÁZ a 18.ik kerületben ...

Eladó családi ház

Budapest XVIII. ker

Kizárólag a Fodor Ingatlanközvetítő Kft. portfóliójában! ELADÓ ÚJ ...

Eladó családi ház

Budapest XVIII. ker, Ganzkertváros

18. kerület zöldövezeti, csendes utcájában napelemes, 140 m2-es + 40 m2. ...

Hasonló családi ház hirdetések

Eladó családi ház

Budapest XVIII. ker

Referens: GI11/100212 Eladásra kínálok egy rendezett kert ölelésében ...

Eladó családi ház

Budapest XVIII. ker

ELADÓ ÚJ ÉPÍTÉSŰ 145 m2-es 5 szobás CSALÁDI HÁZ a 18.ik kerületben ...

Eladó családi ház

Budapest XVIII. ker

Kizárólag a Fodor Ingatlanközvetítő Kft. portfóliójában! ELADÓ ÚJ ...

Eladó családi ház

Budapest XVIII. ker, Ganzkertváros

18. kerület zöldövezeti, csendes utcájában napelemes, 140 m2-es + 40 m2. ...