Eladó családi ház Csévharaszt 84 990 000 Ft

Leírás

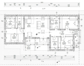
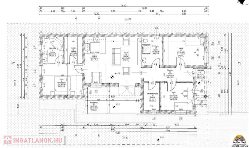
ÚJ ÉPÍTÉSŰ, "A" ENERGETIKAI BESOROLÁSÚ, ÖNÁLLÓ CSALÁDI HÁZ ELADÓ CSÉVHARASZTON
Csévharaszton, új parcellázású, rendezett lakókörnyezetben, új építésű házak szomszédságában kínálunk megvételre egy önálló, körbejárható, A+ energetikai tanúsítvánnyal rendelkező új építésű családi házat, 1680 m²-es telken.

FŐBB PARAMÉTEREK
•Lakótér: 99 m²
•Fedett terasz: 16 m²
•Fedett előtér: 3 m²
•Telek területe: 1680 m²
•Tájolás: délkeleti nappali
•Energetikai besorolás: A+
•Állapot: új építésű

ÁTGONDOLT, MODERN ALAPRAJZ
•Amerikai konyhás nappali közvetlen terasz- és kertkapcsolattal
•3 külön nyíló hálószoba
•Dupla komfort:
ozuhanyzós fürdőszoba
okülön kádas fürdőszoba (igény szerint fali, süllyesztett WC-vel)
•Gardróbszoba
•Háztartási helyiség
•Praktikusan bútorozható, világos terek

MŰSZAKI TARTALOM
•Fő falazat: 30 cm Viablokk tégla
•Külső hőszigetelés: 10 cm grafitos
•Födém hőszigetelés: 15 cm
•Lambériával burkolt ereszdobozolás
•Háromrétegű üvegezésű, korszerű nyílászárók
•Műanyag redőnyök
•Hőszivattyús padlófűtés minden helyiségben
•Nappaliban 1 db klímaberendezés
•H tarifás villamosenergia-ellátás
•100 literes okos vízmelegítő

AZ INGATLAN ÁRA AZ ALÁBBI TÉTELEKET TARTALMAZZA
Az irányár tartalmazza, külön felár nélkül:
•Hideg burkolat 8 000 Ft/m² értékben
•Meleg burkolat 5 500 Ft/m² értékben
•Szaniterek az alapcsomagon felül 25 000 Ft értékben
•Kád vagy zuhanyfal 80 000 Ft értékben
•Beltéri ajtók 70 000 Ft/db értékben
•Geberit falba épített WC 85 000 Ft értékben
Az ettől eltérő, egyedi vagy prémium kiválasztás továbbra is egyéni megállapodás alapján lehetséges.

BŐVÍTÉSI ÉS BEFEKTETÉSI LEHETŐSÉG
A 1680 m²-es telek kiváló lehetőséget biztosít:
•vállalkozásra alkalmas melléképület kialakítására,
•további funkcionális helyiségek létesítésére,
•hosszú távú értéknövelő fejlesztésekre.

KIVÁLÓ ELHELYEZKEDÉS
•A település központja 5 perc sétára
•Bevásárlási lehetőségek, orvosi rendelő, óvoda, iskola, posta 4–5 percen belül
•Buszmegálló 5 perc sétára
o585-ös busszal 13 perc Monor
oMonorról 20 perc vonattal Budapest – Nyugati pályaudvar
•A közelben található a Csévharaszti Borókás Természetvédelmi Terület, túra- és kirándulási lehetőségekkel

AJÁNLJUK
•családoknak,
•fiatal pároknak,
•befektetőknek,
akik modern, energiatakarékos, értékálló ingatlant keresnek nyugodt, mégis jól megközelíthető környezetben.

Hitel esetén díjmentes ügyintézés. Összes bank ajánlata egy helyen, kedvezményekkel.

Nem adta el ingatlanát? NE ADJA EL PIACI ÁR ALATT! Segítünk. Minden ügyfelünknek ingyenesen felmérjük az otthonát! Hívjon vagy írjon, a további információkért.

Családi ház részletei

Ár: 84 990 000 Ft
Méret: 99 négyzetméter
Azonosító: 11597617
Telek: 1685 négyzetméter
Ingatlan állapota: Kitűnő
Jelleg: családi ház
Építőanyag: Kérdezzen rá a hirdetőtől »
Szintek száma: 1 szint
Egész szobák: 4

Egyéb jellemzők

  • Csatorna
  • Garázs
  • Kábel TV
  • Melléképület
  • Parketta
  • Pince
  • Terasz

Hasonló családi ház hirdetések

Eladó családi ház

Csévharaszt

Csévharaszt központi részén eladó egy két lakrészből álló több generáció ...

Eladó családi ház

Csévharaszt

Kétgenerációs családi ház eladó Csévharaszton, csendes mellékutcában!Eladásra ...

Eladó családi ház

Csévharaszt

ÚJ ÉPÍTÉSŰ, ÖNÁLLÓ, PRÉMIUM MINŐSÉGŰ, ENERGIATAKARÉKOS CSALÁDI ...

Eladó családi ház

Csévharaszt

Kétgenerációs családi ház eladó Csévharaszton, csendes mellékutcában!Eladásra ...

Hasonló családi ház hirdetések

Eladó családi ház

Csévharaszt

Csévharaszt központi részén eladó egy két lakrészből álló több generáció ...

Eladó családi ház

Csévharaszt

Kétgenerációs családi ház eladó Csévharaszton, csendes mellékutcában!Eladásra ...

Eladó családi ház

Csévharaszt

ÚJ ÉPÍTÉSŰ, ÖNÁLLÓ, PRÉMIUM MINŐSÉGŰ, ENERGIATAKARÉKOS CSALÁDI ...

Eladó családi ház

Csévharaszt

Kétgenerációs családi ház eladó Csévharaszton, csendes mellékutcában!Eladásra ...