Eladó családi ház Debrecen 188 520 000 Ft

Leírás

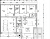
Eladásra kínálunk egy kivételes minőségben megtervezett, letisztult, modern stílusú ikerházat Debrecen Nagymacs részén, amely minden szempontból a jövő otthona. Az ingatlan magas szintű energiahatékonysággal, kimagasló komforttal és exkluzív esztétikával várja új tulajdonosát. Az otthon négy különálló, tágas hálószobával lett kialakítva, így ideális nagyobb családok számára is. A lakáshoz tartozó garázs mérete több mint 37 m², így két gépjármű komfortos tárolására is alkalmas, plusz extra tárolóhelyet biztosít!

Főbb extrák és előnyök:
- Letisztult, időtálló homlokzat, prémium szilikonos nemesvakolattal és elegáns homlokzatburkolatokkal, nagy üvegfelületekkel
- Hatalmas, napfényes terek, modern belsőépítészeti kialakítással
- Saját, kétállásos garázs, parkolási lehetőséggel több autó részére
- Magas szintű hő- és hangszigetelés: háromrétegű műanyag ablakok (Ug=0,7 W/m2K), 35 cm vastag kőzetgyapot tetőszigetelés, dupla rétegű padlóhőszigetelés
- Padlófűtés minden helyiségben
- Levegő-víz hőszivattyús hűtés és fűtés, H-tarifás mérővel (2 db fan-coil hűtőberendezés/lakás)
- Saját, 5 kW-os napelemes rendszer lakásonként
- Prémium minőségű burkolatok választható színekben (br. 10.000-15.000 Ft/m²-ig), igényesen kialakított vizes helyiségek
- Modern, exkluzív szaniterek (fürdőkád, zuhany, mosdók, WC prémium árkategóriában)
- Tágas, világos nappali-étkező-konyha egyben, közvetlen teraszkapcsolattal
- Hideg- és melegburkolatok, minőségi laminált parketta (7-8 mm)
A lakóház minden elemében a korszerű, energiatudatos építészet értékeit képviseli. Kifinomult, időtálló megjelenést kapott prémium szilikonos nemesvakolattal, letisztult homlokzatburkolatokkal és nagyvonalú üvegfelületekkel. A világos, napfényes nappali, étkező és konyha egységből közvetlen kapcsolat nyílik a teraszra és a parkosított, térköves udvarra, ahol az automata öntözőrendszer előkészítés is megtalálható. Esztétikus, világos térkő burkolat az udvaron, parkosított zöldterület, automata öntözőrendszer előkészítés, dísznövények, elkerített telek elektromos kapuval.

Szerkezeti megoldások:
- VIABLOKK falszerkezet – kiemelkedő teherbírás és hőszigetelés
- Szeglemezes rácsos tetőszerkezet, előszigetelt tetőpanel (antracitszürke RAL 7016)
- Vasbeton koszorúk, hanggátló falak a legjobb privátszféra érdekében
- Tartós, csúszásmentes burkolatok lépcsőkön, közlekedőkön
- Minden hatályos szabványnak megfelelő csapadékvíz és hulladék elhelyezés – süllyesztett kukatárolóval, csapadékvíz-elvezető rendszerrel.

Kiváló lokáció, jövő biztos technológia, kompromisszum-mentes minőség
Ez az ingatlan a maximális lakókomfort és a fenntartható, energiatudatos kialakítás tökéletes kombinációja.
Ha Ön valóban időtálló, multifunkcionális, exkluzív otthont keres családjának Debrecenben, ne habozzon érdeklődni – személyes bemutatást, részletes műszaki konzultációt, és látványterveket is biztosítunk!

#debrecen #nagymacs #újépítés #2026 #hőszivattyú #ikerház #viablokk #4háló #napelem #duplagarázs

Családi ház részletei

Ár: 188 520 000 Ft
Méret: 157 négyzetméter
Azonosító: 11574584
Telek: 660 négyzetméter
Ingatlan állapota: Kitűnő
Jelleg: ikerház
Építőanyag: Kérdezzen rá a hirdetőtől »
Egész szobák: 5

Egyéb jellemzők

  • Csatorna
  • Garázs
  • Kábel TV
  • Melléképület
  • Parketta
  • Pince
  • Terasz

Hasonló családi ház hirdetések

Eladó családi ház

Debrecen

Kiváló adottságokkal rendelkező, új házat kínálunk eladásra Debrecen ...

Eladó családi ház

Debrecen

Debrecen Csapó utca közelében, jól szeparált, lakóegység és irodahelyiség ...

Eladó családi ház

Debrecen

Debrecen, Csigekert hangulatos mediterrán lakóparkjában, zártsorú beépítéses, ...

Eladó családi ház

Debrecen

Debrecenben, a kedvelt Csapókert városrészben eladó egy 2004-ben épült, ...

Hasonló családi ház hirdetések

Eladó családi ház

Debrecen

Kiváló adottságokkal rendelkező, új házat kínálunk eladásra Debrecen ...

Eladó családi ház

Debrecen

Debrecen Csapó utca közelében, jól szeparált, lakóegység és irodahelyiség ...

Eladó családi ház

Debrecen

Debrecen, Csigekert hangulatos mediterrán lakóparkjában, zártsorú beépítéses, ...

Eladó családi ház

Debrecen

Debrecenben, a kedvelt Csapókert városrészben eladó egy 2004-ben épült, ...