Eladó családi ház Dunaharaszti 788 000 000 Ft

Leírás

Dunaharaszti iparterületén telephely minősítésű ingatlan, számos felhasználói és fejlesztési lehetőséggel eladó!

Kereskedelmi, szolgáltató gazdasági terület, rajta épített háromszintes felépítmény és fejlesztési terület!

A 11.217 m2-es sík, teljes közművel ellátott telekterületen elhelyezkedő többfunkciós 1162 m2-es ingatlan mellett, a jelenleg érvényes beépítési szabályzatnak megfelelően igény esetén további építmények elhelyezésének lehetősége adott.

A MEGLÉVŐ ÉPÍTMÉNY KISEBB TERÜLETTEL IS MEGVÁSÁROLHATÓ (kb. 6000 nm)!

FEJLESZTÉSI LEHETŐSÉG:
Az ingatlan Gksz-2 építési övezetbe sorolt. Az építési szabályozás alapján iparitermelő, vagy raktár funkciójú fejlesztésre is alkalmas.

Az ingatlan területe 11.217m2, beépíthetősége 45%, így még 5047 m2 építhető be.

Az építménymagasság a szomszédos területen kialakult legmagasabb épületekhez igazodik. Az itt álló legmagasabb épületek kb. 10 méteres homlokzatmagasságúak, amely földszint + 2 emeletnek felel meg.

Engedélyezett kamion és buszközlekedés!

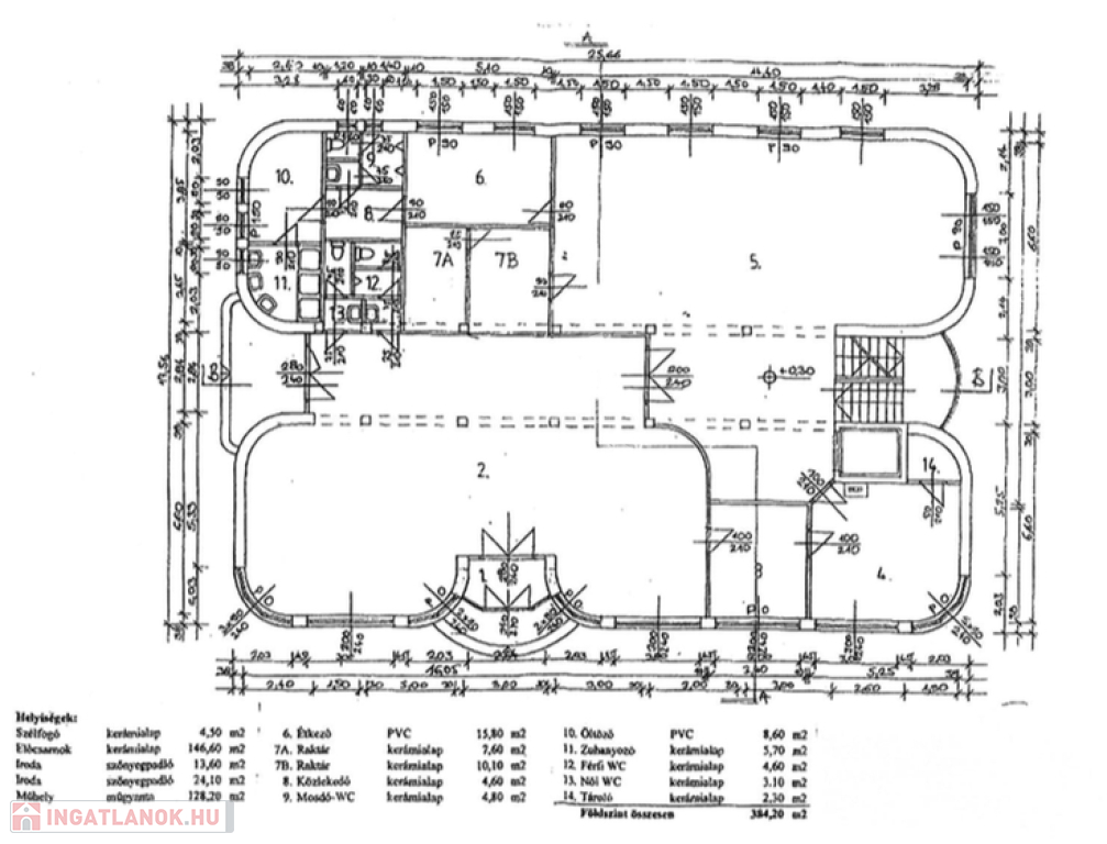
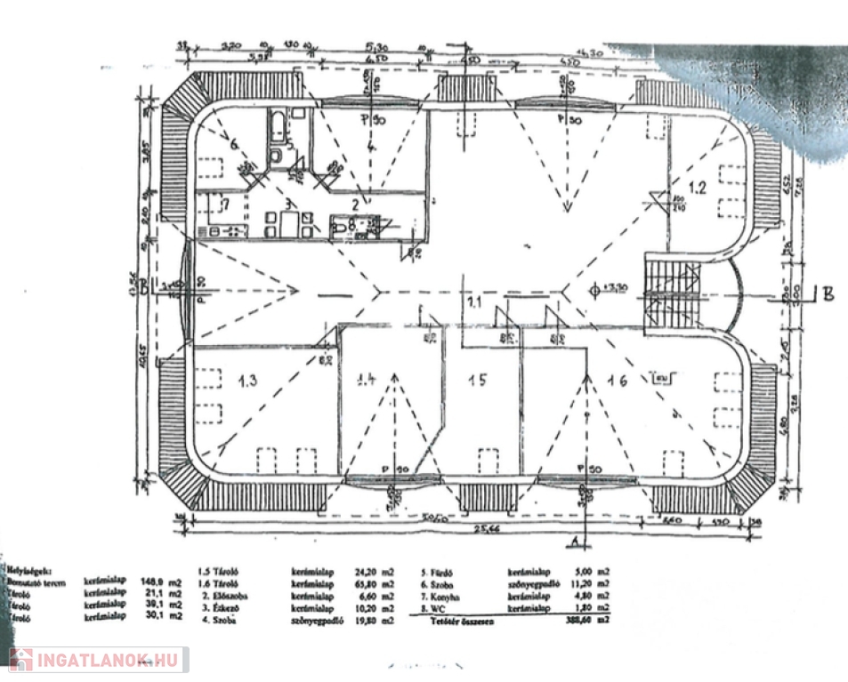
AZ IRODAÉPÜLET FŐBB JELLEMZŐI:

- 1162 m2 alapterületű, két szintes (+pince) néhány éve felújított
épület (szintenként 380 m2),
- Porotherm 38-as falazat, bitumenes zsindely héj,
- szintenként korszerű vizesblokk és irodai konyha,
- saját hőközponttal rendelkezik az épület + klímák,
- tűz és riasztórendszer,
- kiépített LAN-kábel hálózat és telefonhálózat,
- kerítéssel határolt zöldterület,
- parkosított kert, több gépjármű részére biztosított parkoló,

AZ INGATLAN ELHELYEZKEDÉSÉNEK ELŐNYEI:

A Dunaharaszti ipari park nyújtotta lehetőségek számos előnyt kínálnak. Nagyfeszültségű csatlakozási lehetőség. Fejlett infrastruktúra. A Dunától való távolság lehetővé teszi a vízi közlekedés előnyök kiaknázását.

A frekventált ipari park megközelítése aszfaltozott közúton és üzemi úton, M0 autóútról 51-es számú útra letérve, könnyen megközelíthető.
Dunaharaszti-Budapest centrum= 20 km
Dunaharaszti-M0 autópálya= 2 km.

Amivel segítjük az Ön ingatlanvásárlását:
- ingyenes hitelügyintézés,
- jogi háttér,
- földhivatali ügyintézés,
- energetikai tanúsítvány,
- a vevő számára az ingatlanközvetítés ingyenes.
Irodánk 27 éves szakmai tapasztalattal áll ügyfelei rendelkezésére!

Várom szíves megkeresését!

Családi ház részletei

Ár: 788 000 000 Ft
Méret: 11 217 négyzetméter
Azonosító: 11573658
Irodai azonosító: 388686
Cím: Irodaházzal
Telek: 11217 négyzetméter
Ingatlan állapota: Kérdezzen rá a hirdetőtől »
Jelleg: társasház
Építőanyag: Kérdezzen rá a hirdetőtől »
Kor: 50 évesnél régebbi

Egyéb jellemzők

  • Csatorna
  • Pince
  • Terasz

Térkép