Eladó családi ház Dunakeszi 157 900 000 Ft

Leírás



Prémium minőségű új építésű ikerház Dunakeszi legszebb részén, a Duna közelében! A modern hőszivattyús rendszer mellett kiemelkedő műszaki tartalom: beépített redőnyök, választható hideg-meleg burkolatok, exkluzív szaniterek, igényes beltéri ajtók és háromrétegű külső nyílászárók, hogy otthonod minden részlete tökéletes legyen.

Az építtető kivitelező cég több éves szakmai tapasztalattal és helyismerettel teremti meg a lehetőséget az új otthonok vételére Dunakeszi. Egy ház kivitelezésénél talán még fontosabb az elhelyezkedés, ezért nagyon gondosan választják meg azt a telket, amelyre elkezdenek építkezni.

A hőszivattyús fűtés és a kiemelt műszaki tartalom mellett a ház külső hőszigetelése is prémium minőségű, így az ingatlan A+ energetikai besorolású. Ennek köszönhetően a fenntartási költség minimális, miközben a kényelem maximális.

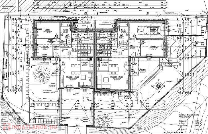
A ház alaprajzát, gondosan kellő odafigyeléssel rajzolták meg, hogy a megépítés után, nagy terek, és kihasználható szobák legyenek. A földszinten garázs és nagy terasz is helyett kapott.

Ez a ház nemcsak lakás – ez életstílus! Ne maradj le róla!

Bővebb tájékoztatásért, referenciákért, és a terület körbejárásához keressen minket telefonon vagy üzenetben.

Amennyiben a vásárláshoz meglévő ingatlanát kellene eladni, és vagy hitelt tervez akkor irodáink készséggel segítenek a legjobb megoldásokat megtalálni.

Családi ház részletei

Ár: 157 900 000 Ft
Méret: 144 négyzetméter
Azonosító: 11599802
Irodai azonosító: 24733
Telek: 349 négyzetméter
Ingatlan állapota: Épülő
Jelleg: családi ház
Építőanyag: Kérdezzen rá a hirdetőtől »
Fűtés jellege: Egyéb
Szintek száma: Földszintes
Egész szobák: 4

Hasonló családi ház hirdetések

Eladó családi ház

Dunakeszi

Kétgenerációs családi ház eladó Dunakeszi központjában – hatalmas, ...

Eladó családi ház

Dunakeszi

Dunakeszi Révdűlőben eladó egy jó adottságú, 2005-ben épült ikerházfél. Az ...

Eladó családi ház

Dunakeszi

Prémium minőségű új építésű ikerház Dunakeszi legszebb részén, ...

Eladó családi ház

Dunakeszi

Különleges családi ház Dunakeszi Rózsadombján nagy kerttel, garázzsal, ...

Hasonló családi ház hirdetések

Eladó családi ház

Dunakeszi

Kétgenerációs családi ház eladó Dunakeszi központjában – hatalmas, ...

Eladó családi ház

Dunakeszi

Dunakeszi Révdűlőben eladó egy jó adottságú, 2005-ben épült ikerházfél. Az ...

Eladó családi ház

Dunakeszi

Prémium minőségű új építésű ikerház Dunakeszi legszebb részén, ...

Eladó családi ház

Dunakeszi

Különleges családi ház Dunakeszi Rózsadombján nagy kerttel, garázzsal, ...