Eladó családi ház Érd 174 000 000 Ft

Leírás

MODERN OTTHON ÉRD, FENYVES-PARKVÁROSBAN

TÁGAS TEREK,
REMEK ELRENDEZÉS,
KORSZERŰ MŰSZAKI MEGOLDÁSOK,
ÉLHETŐ/ÉLVEZHETŐ KERT JELLEMZI EZT A HÁZAT


KÖRNYÉK:
Érd legkedveltebb városrésze Fenyves-Parkváros. Csendes, családi házas övezet, rendezett utcákkal, szép házakkal és jó szomszédsággal.
Az autópályától kellően távol helyezkedik el ahhoz, hogy a forgalom zaja ne legyen zavaró, ugyanakkor gyorsan elérhető és élvezhető a városközpont minden előnye.

HÁZ:
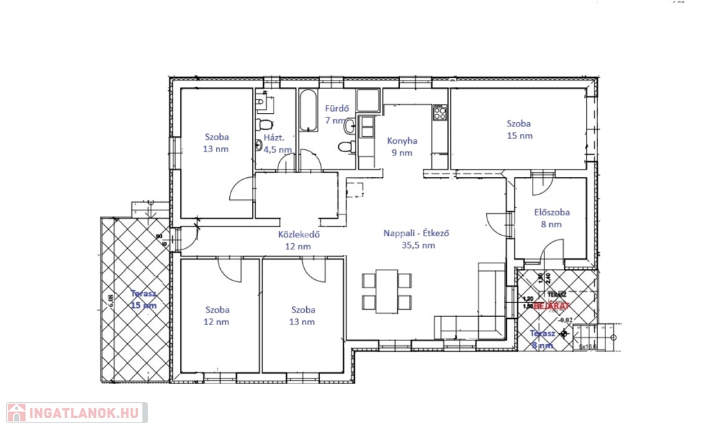
2016-ban épült. Lakótere 129 nm. A ház mérete családokra lett szabva.
Elrendezése az alaprajz szerinti. Amerikai konyhás nappali, 4 hálószoba, 2 fürdőszoba, tágas előszoba és közlekedő található benne.
Hátul, a kert felé pedig egy kényelmes méretű, fedett terasz található.

Falazata 30 cm-es tégla, 10 cm hőszigeteléssel. A födém vasbeton, mely lehetőséget ad a tetőtér beépítésére.

Fűtésről gázcirkó gondoskodik, radiátoros hőleadókkal, emellett klíma és kandalló is rendelkezésre áll.
A 2023-ban telepitett, 6kWh-s napelemes rendszernek köszönhetően a ház vilanyszámlája gyakorlatilag 0 Ft.

A ház energetikai besorolása A++


KERT:
Ez az a kert, ami nem csak szép, hanem valóban használható is.
Az utcafront felől a magas növényzet biztosítja az intimitást, az előkert gondosan parkosított, automata öntözőrendszerrel ellátott.

A hátsó kert sarkában dupla autóbeálló került kialakításra, térkövezett felhajtóval.
A kert parkosított része a pihenést szolgálja. Gyermekeknek játszótér, veteményes a kertészkedni vágyóknak, biztonságos környezet a kutyusoknak.
Tárolóból a kertben sincs hiány, kettő is rendelkezésre áll.


JÖJJÖN EL, NÉZZE MEG AMENNYIBEN EGY SZERETHETŐ, ÉLHETŐ, MODERN OTTHONRA VÁGYIK, JÓ HELYEN.





AMENNYIBEN NEM RENDELKEZIK A TELJES VÉTELÁRRAL, segítünk Önnek megtalálni a legjobb megoldást!
BANKFÜGGETLEN hitelcentrumunk minden elérhető bank és hitelintézet ajánlatát versenyezteti az Ön kedvéért, ráadásul díjmentesen. Önnek nincs más dolga, mint elbeszélgetni munkatársunkkal, aki a hallott információk alapján versenyre hívja a bankokat, hogy Ön hosszú távon is a legjobb konstrukciót kaphassa. A legjobb ajánlatokból végül Ön választhatja ki a nyertest. Munkatársaink sokéves szakmai tapasztalattal várják Önt, előre egyeztetve akár a normál munkaidő után is.

Családi ház részletei

Ár: 174 000 000 Ft
Méret: 140 négyzetméter
Azonosító: 11597568
Irodai azonosító: 392359
Cím: ÉRD - FENYVES PARKVÁROS
Telek: 865 négyzetméter
Ingatlan állapota: Kitűnő
Jelleg: családi ház
Építőanyag: Tégla
Fűtés jellege: Cirkó
Fűtés módja: Gáz
Komfort fokozat: Dupla komfort
Kor: 6-10 éves
Szintek száma: Földszintes
Egész szobák: 5

Egyéb jellemzők

  • Csatorna
  • Garázs
  • Pince
  • Terasz

Térkép

Hasonló családi ház hirdetések

Eladó családi ház

Érd

ÖRÖK PANORÁMÁS, ÖNÁLLÓ CSALÁDI HÁZ, NAGY TELEKKEL kiemelkedő minőségben! DÍJNYERTES ...

Eladó családi ház

Érd

Budapest vonzáskörzetében, Érden eladásra kínálunk nettó 157 nm alapterületű ...

Eladó családi ház

Érd

Kedves Ingatlankereső! Ajánlom figyelmébe ezt a TÁRSASHÁZAT! Szeretné ...

Eladó családi ház

Érd

PRÉMIUM IKERHÁZ ELADÓ ÉRD FENYVESI RÉSZEN, PANORÁMÁS TERASSZAL ! Rengeteg ...

Hasonló családi ház hirdetések

Eladó családi ház

Érd

ÖRÖK PANORÁMÁS, ÖNÁLLÓ CSALÁDI HÁZ, NAGY TELEKKEL kiemelkedő minőségben! DÍJNYERTES ...

Eladó családi ház

Érd

Budapest vonzáskörzetében, Érden eladásra kínálunk nettó 157 nm alapterületű ...

Eladó családi ház

Érd

Kedves Ingatlankereső! Ajánlom figyelmébe ezt a TÁRSASHÁZAT! Szeretné ...

Eladó családi ház

Érd

PRÉMIUM IKERHÁZ ELADÓ ÉRD FENYVESI RÉSZEN, PANORÁMÁS TERASSZAL ! Rengeteg ...